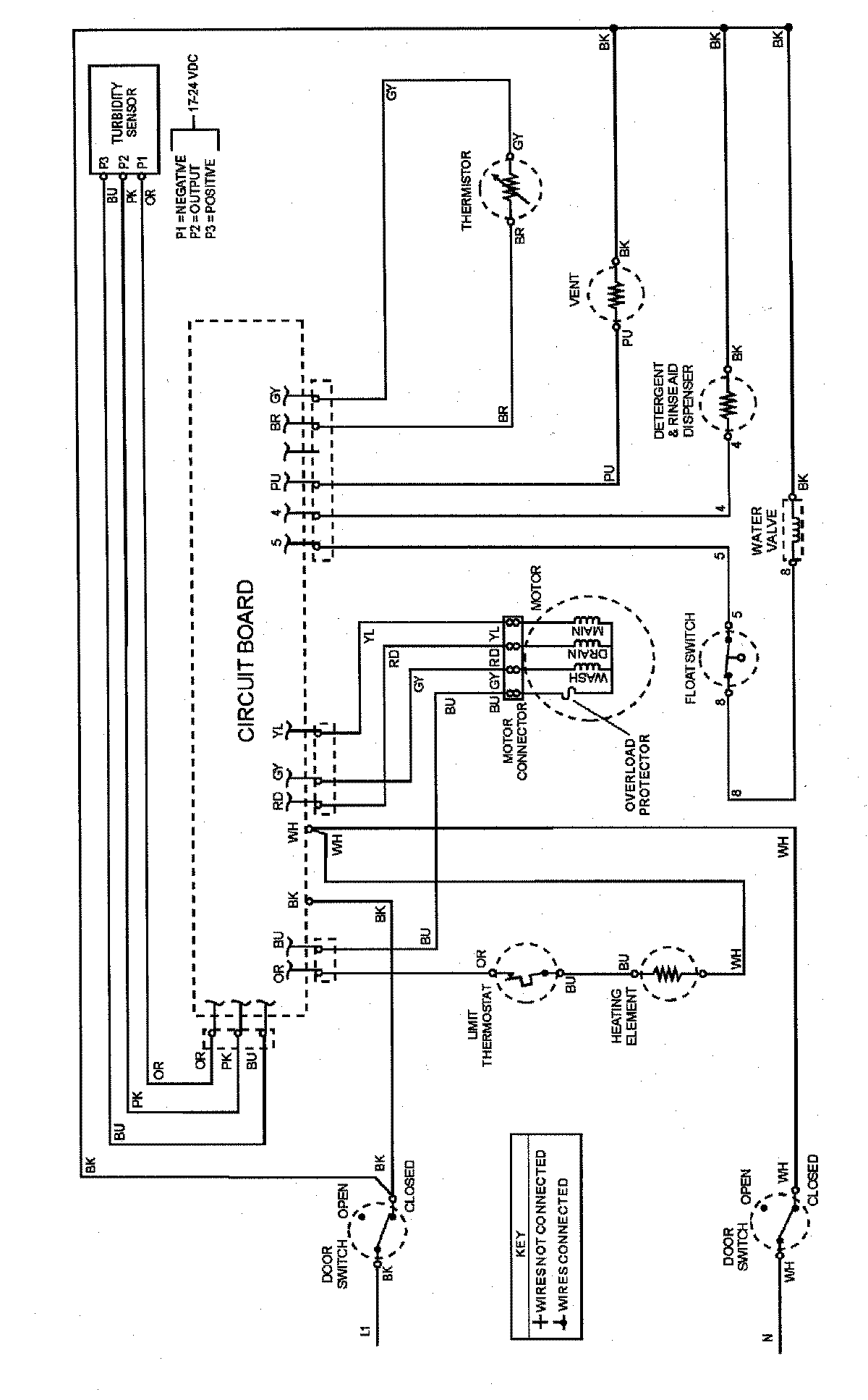
JDB9910AWB 07 – WIRING INFORMATIONadmin2025-04-26T09:44:00+00:00JDB9910AWB 07 – WIRING INFORMATION ProductsPositionProductNIMAY 15002716NIMAY 15002869