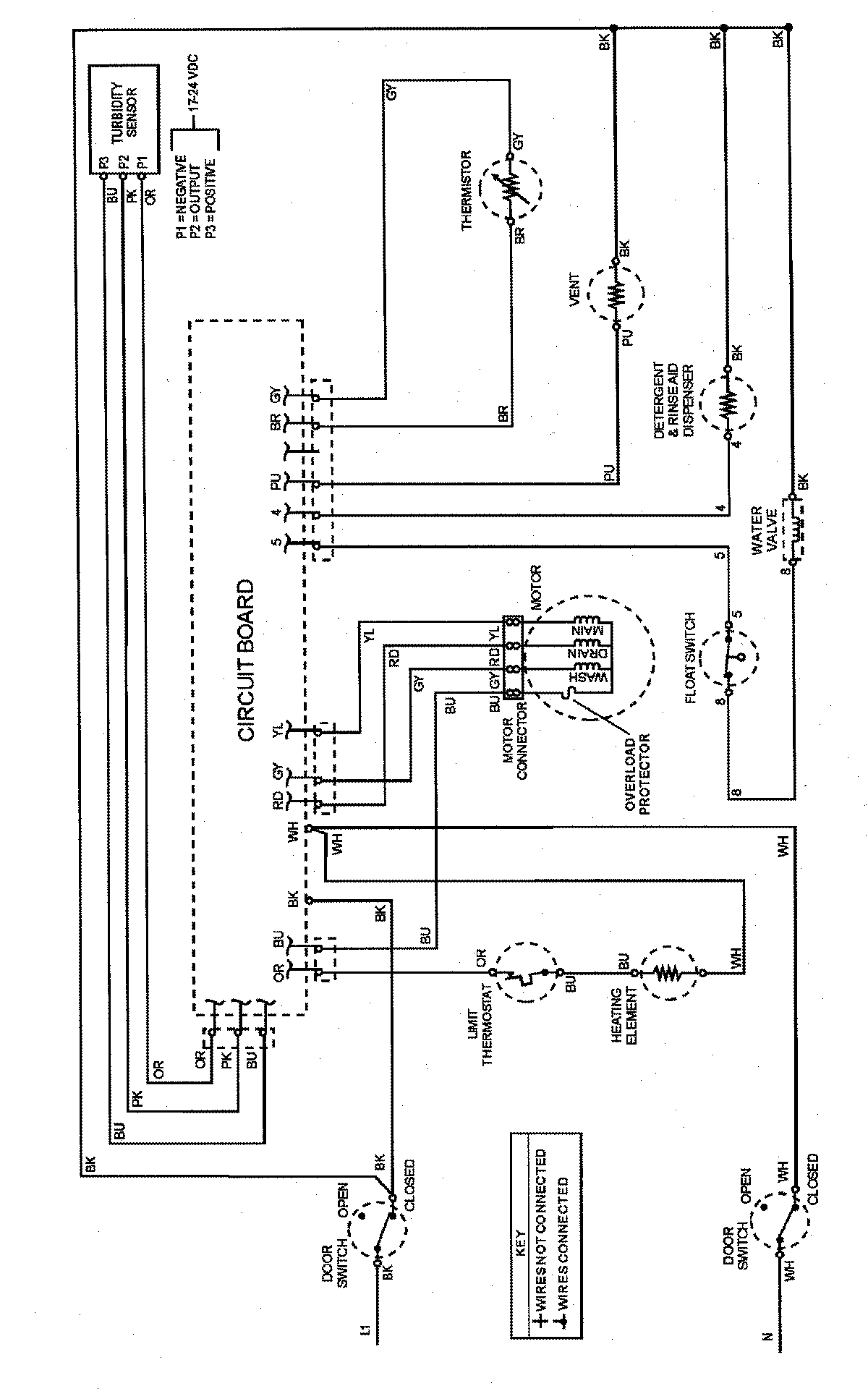
JDB9910AWQ 07 – WIRING INFORMATIONadmin2025-04-26T09:43:45+00:00JDB9910AWQ 07 – WIRING INFORMATION ProductsPositionProductNIMAY 15002716NIMAY 15002869