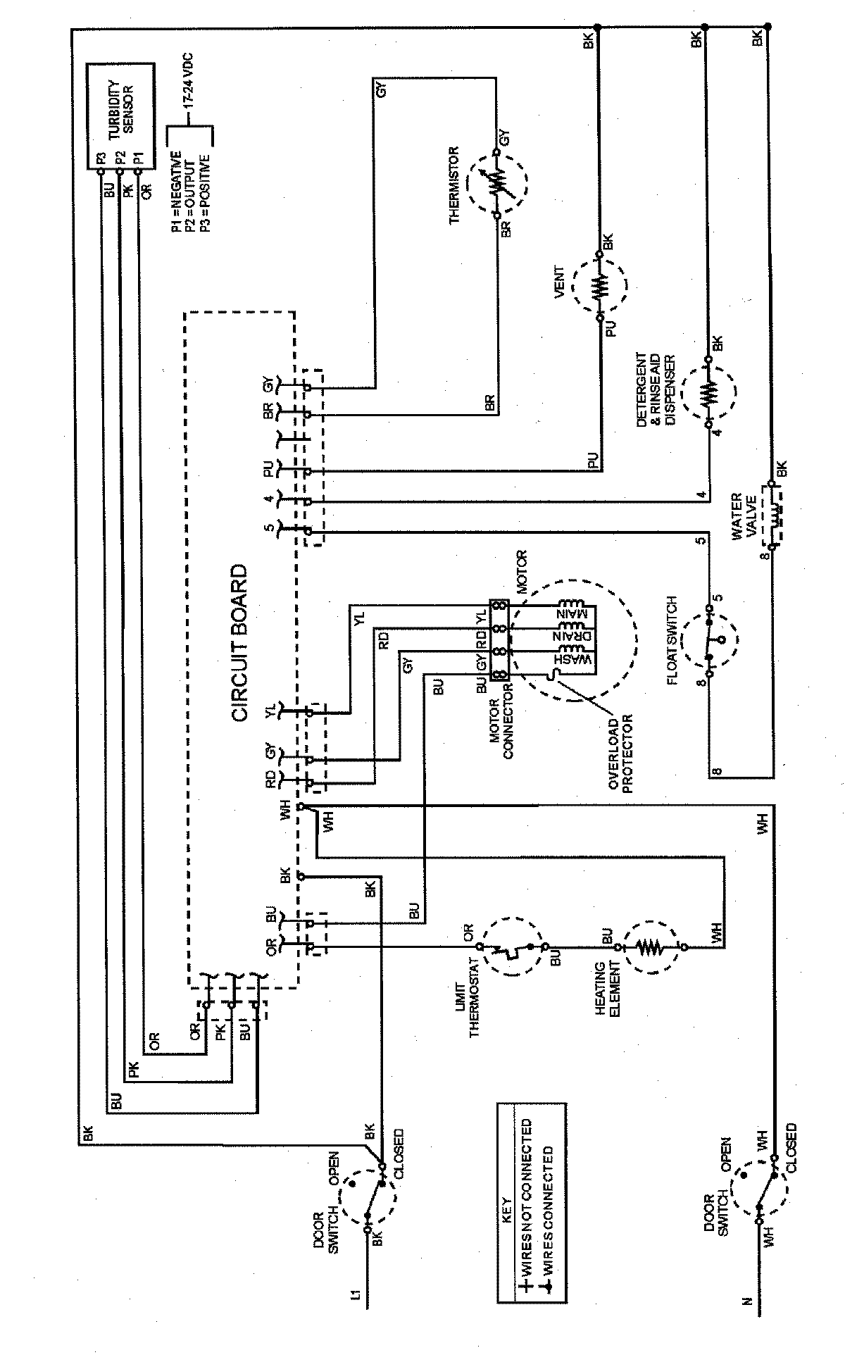
JDB9910AWS 06 – WIRING INFORMATIONadmin2025-04-26T09:43:42+00:00JDB9910AWS 06 – WIRING INFORMATION ProductsPositionProductNIMAY 15002716NIMAY 15002869