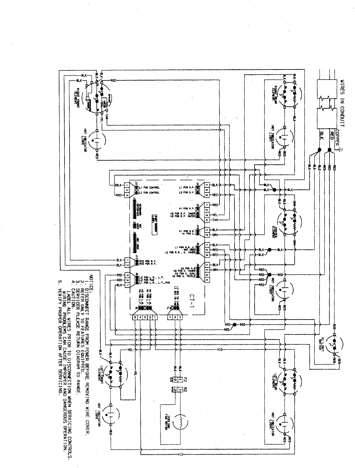
JEC0530ADB 04 – WIRING INFORMATIONadmin2025-04-26T09:27:21+00:00JEC0530ADB 04 – WIRING INFORMATION ProductsPositionProductNIMAY 15003583