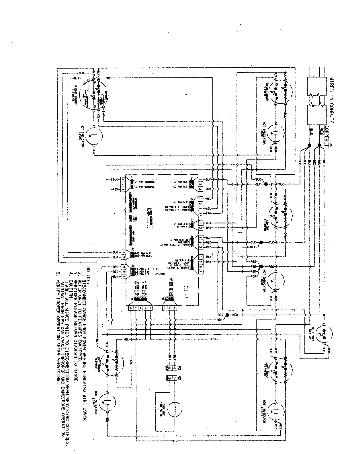
JEC0530ADS 04 – WIRING INFORMATIONadmin2025-04-26T09:28:21+00:00JEC0530ADS 04 – WIRING INFORMATION ProductsPositionProductNIMAY 15003583