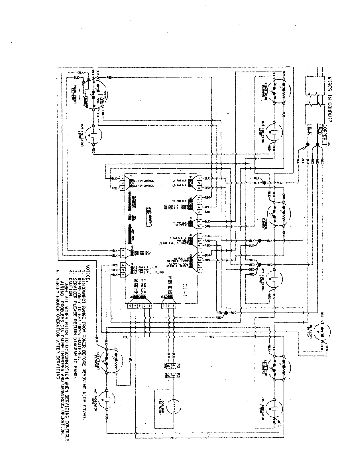
JEC0530ADW 04 – WIRING INFORMATIONadmin2025-04-26T09:30:09+00:00JEC0530ADW 04 – WIRING INFORMATION ProductsPositionProductNIMAY 15003583