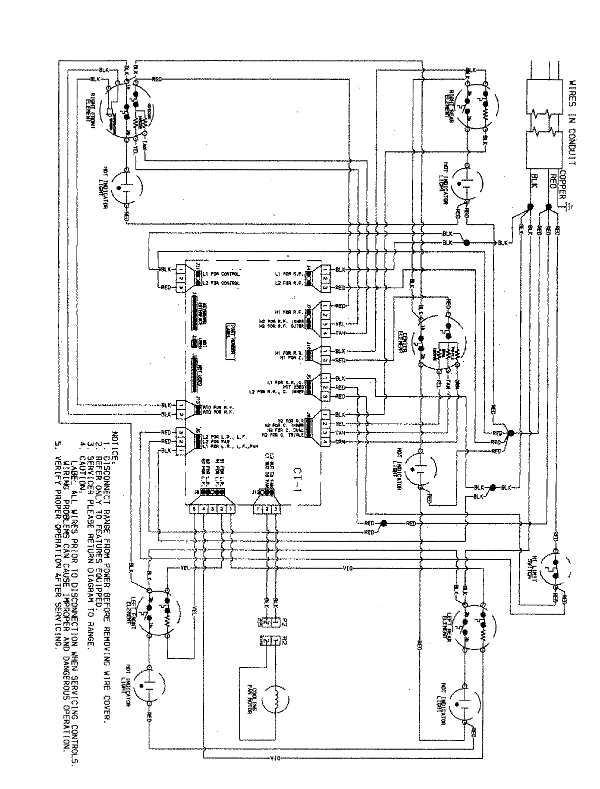
JEC0536ADB 03 – WIRING INFORMATIONadmin2025-04-26T09:29:26+00:00JEC0536ADB 03 – WIRING INFORMATION ProductsPositionProductNIMAY 15003585