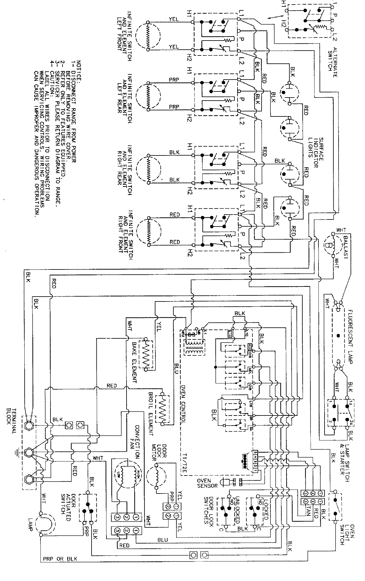
JER8550AAW 04 – WIRING INFORMATION

JER8550AAW 04 – WIRING INFORMATION

Products

PositionProduct
NIMAY 15002291