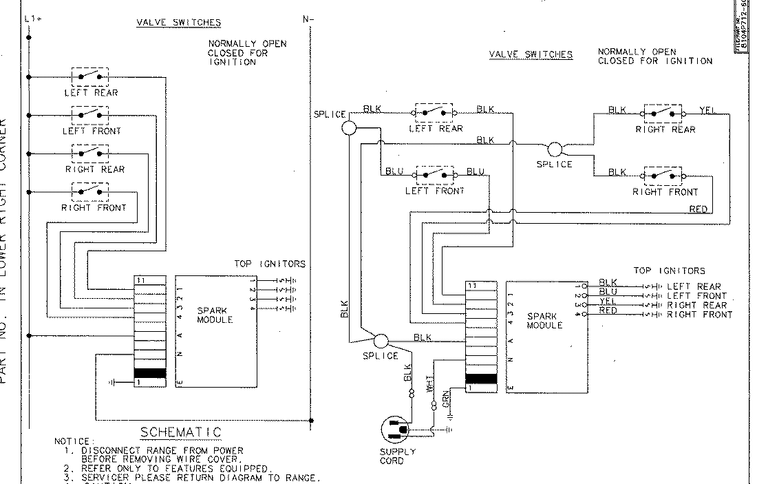
JGC8430ADW 03 – WIRING INFORMATIONadmin2025-04-26T09:02:11+00:00JGC8430ADW 03 – WIRING INFORMATION ProductsPositionProductNIMAY 15002811