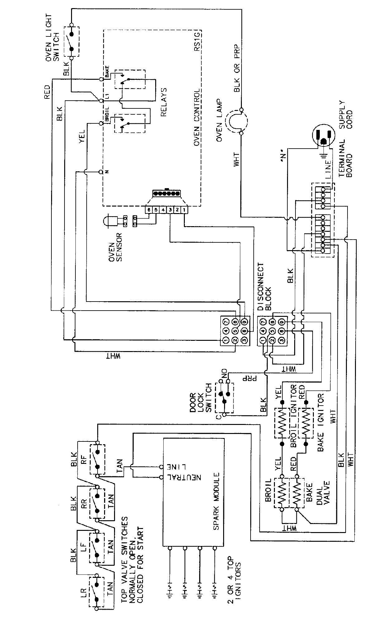
JGR8730ADQ 07 – WIRING INFORMATIONadmin2025-04-26T09:03:57+00:00JGR8730ADQ 07 – WIRING INFORMATION ProductsPositionProductNIMAY 15002242