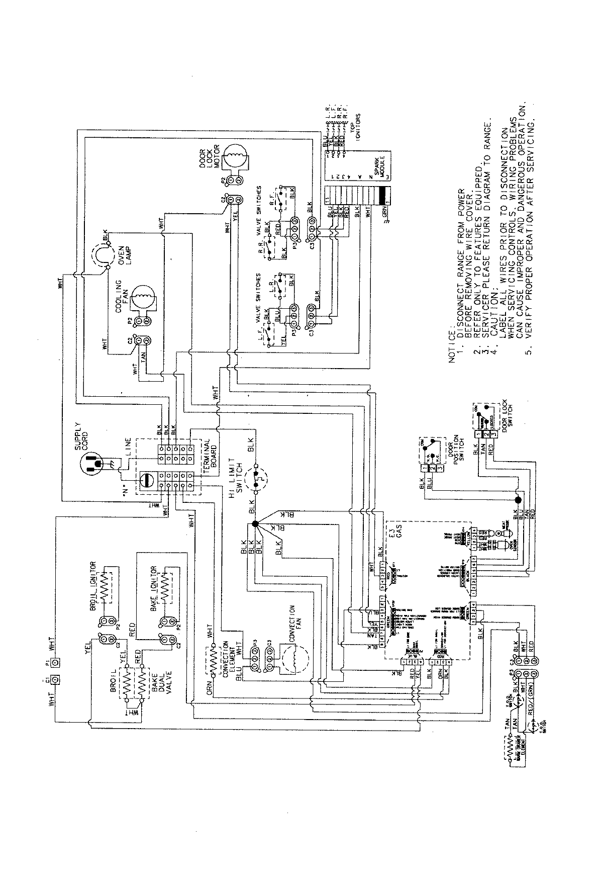
JGS8850BDW 09 – WIRING INFORMATIONadmin2025-04-26T09:20:41+00:00JGS8850BDW 09 – WIRING INFORMATION ProductsPositionProductNIMAY 15003888