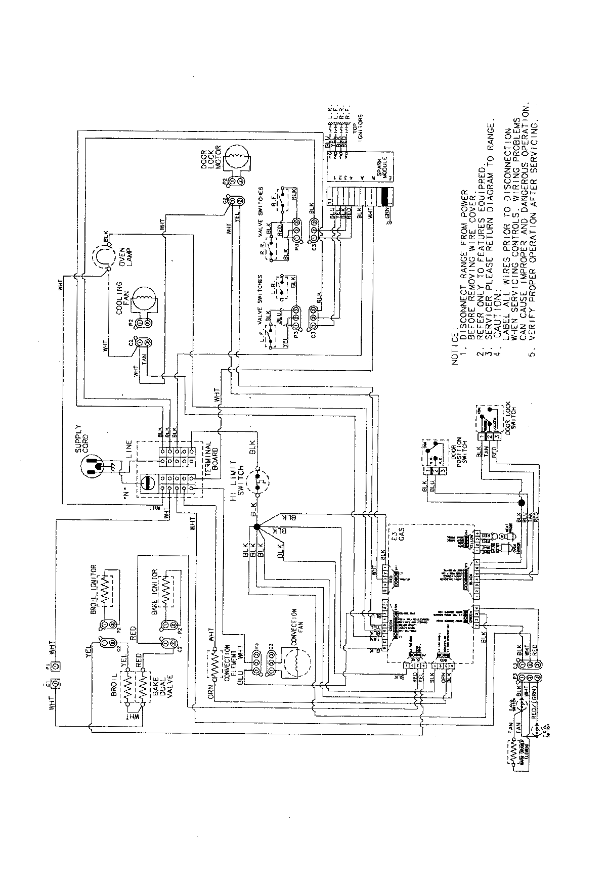
JGS8860BDP 09 – WIRING INFORMATIONadmin2025-04-26T09:21:41+00:00JGS8860BDP 09 – WIRING INFORMATION ProductsPositionProductNIMAY 15003888