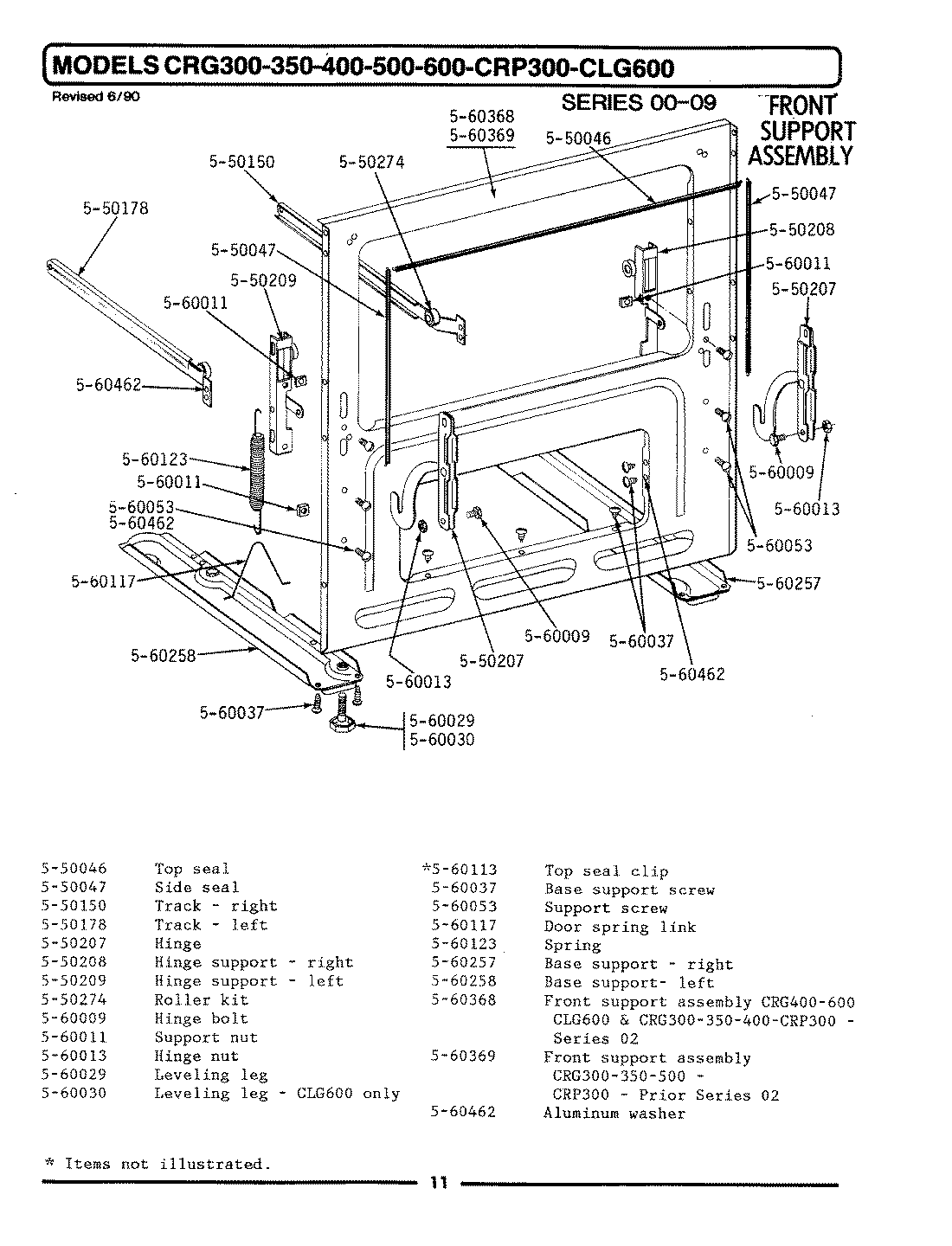
LCLG600 10 – FRONT SUPPORT ASSEMBLYadmin2025-04-26T08:56:18+00:00LCLG600 10 – FRONT SUPPORT ASSEMBLY ProductsPositionProduct1MAY 5500462MAY 5500473MAY 5501504MAY 5501785MAY 5502076MAY 5502087MAY 5502098MAY 5502749MAY 56000910MAY 56001111MAY 56001312MAY 56002913MAY 56003014MAY 56011315MAY 56003716MAY 56005317MAY 56011718MAY 56012319MAY 56025720MAY 56025821MAY 56036822MAY 560462