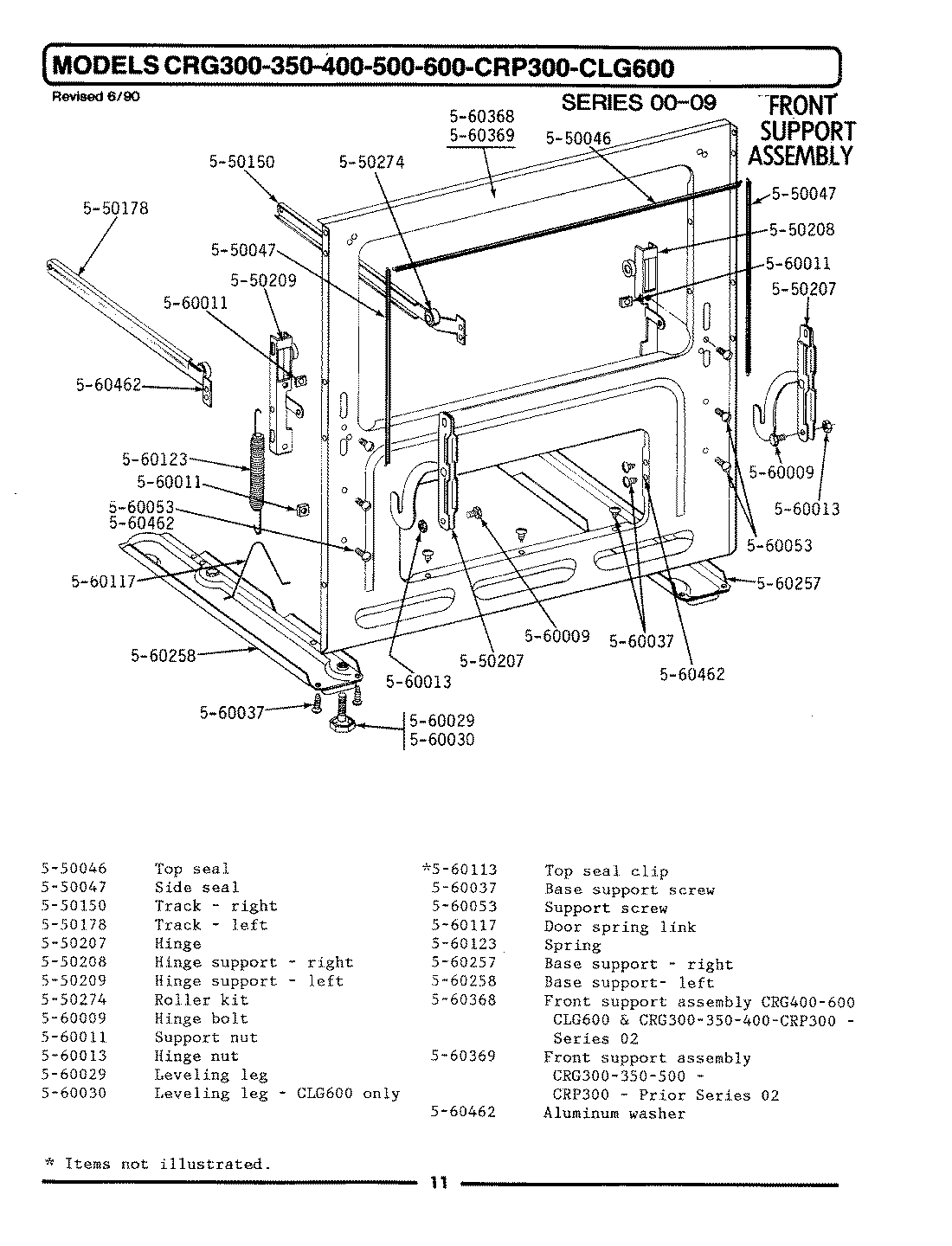
LCRG300 04 – FRONT SUPPORT ASSEMBLYadmin2025-04-26T08:56:23+00:00LCRG300 04 – FRONT SUPPORT ASSEMBLY ProductsPositionProduct1MAY 5500462MAY 5500473MAY 5501503MAY 5501784MAY 5502075MAY 5502085MAY 5502096MAY 5502747MAY 5600098MAY 5600119MAY 56001310MAY 56002911MAY 56011312MAY 56003713MAY 56005314MAY 56011715MAY 56012316MAY 56025816MAY 56025717MAY 56036817MAY 56036918MAY 560462