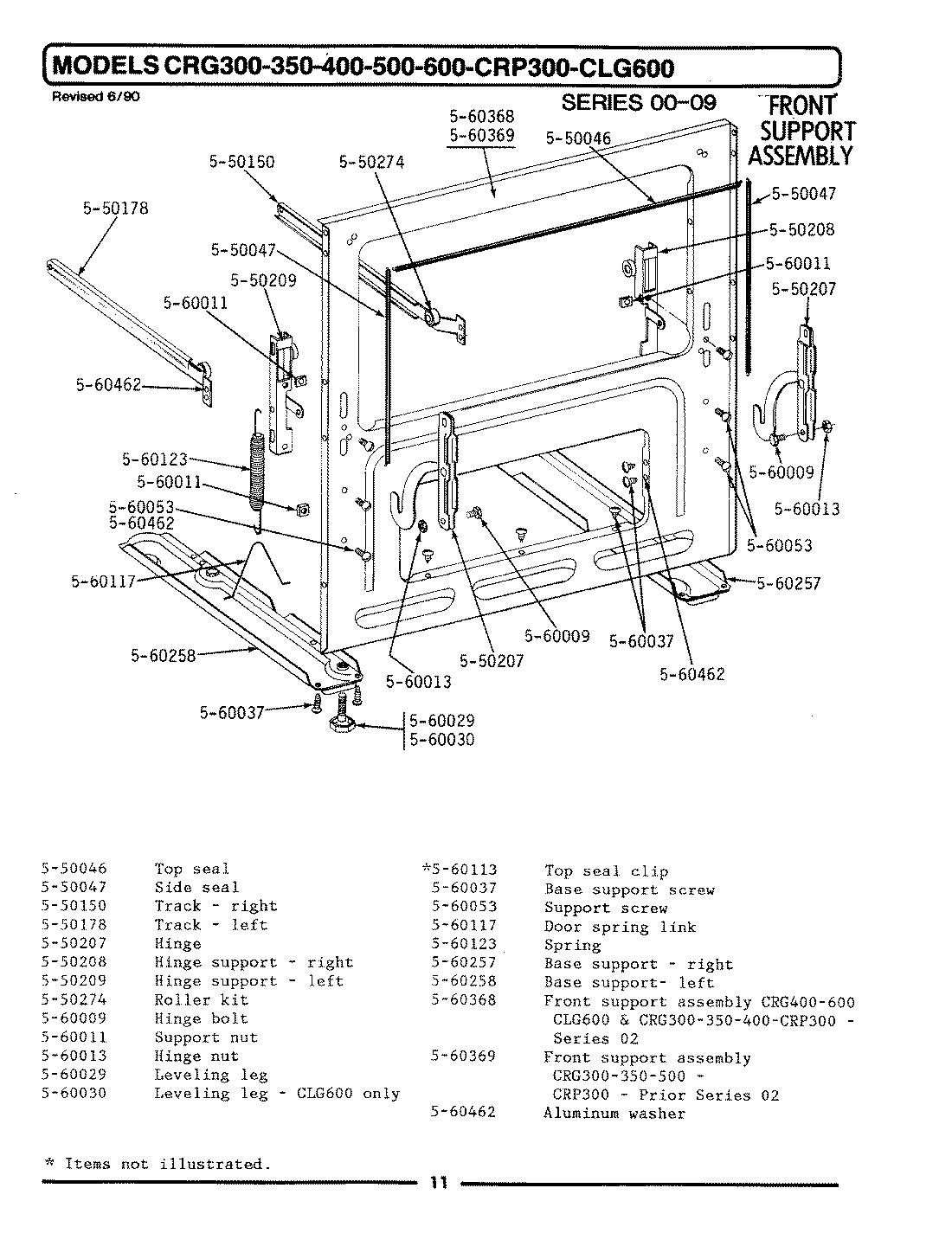
LCRG382 04 – FRONT SUPPORT ASSEMBLYadmin2025-04-26T08:56:35+00:00LCRG382 04 – FRONT SUPPORT ASSEMBLY ProductsPositionProduct1MAY 5500462MAY 5500473MAY 5501504MAY 5501785MAY 5502076MAY 5502087MAY 5502098MAY 5502749MAY 56000910MAY 56001111MAY 56001312MAY 56002913MAY 56011314MAY 56003715MAY 56005316MAY 56011717MAY 56012318MAY 56025719MAY 56025820MAY 56036821MAY 56036922MAY 560462