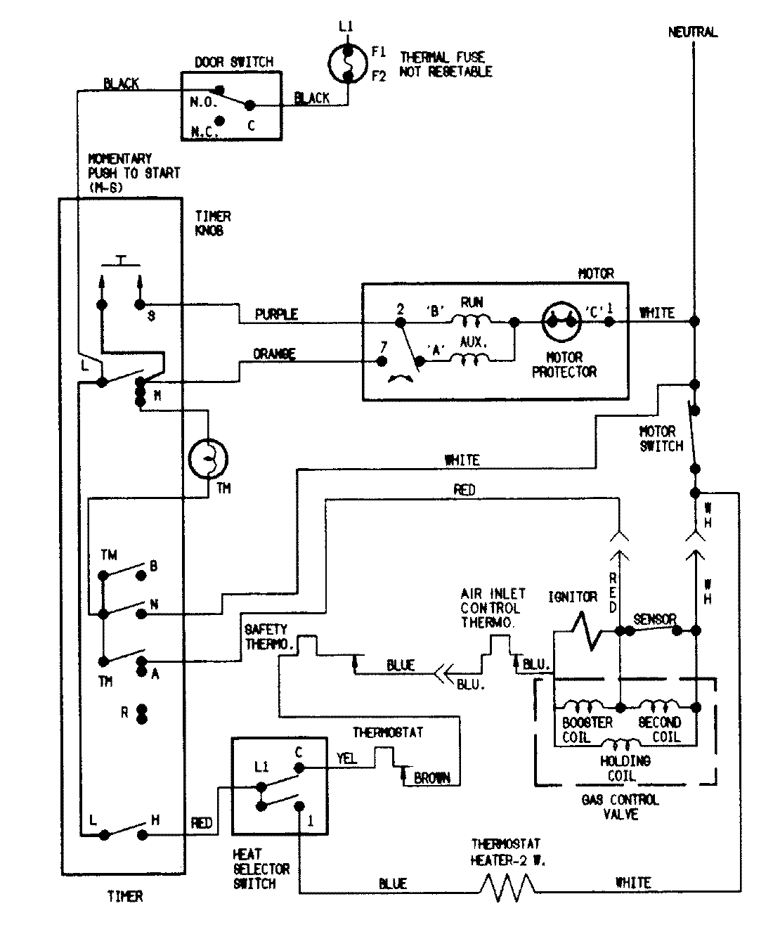
LDG1000AAE 07 – WIRING INFORMATIONadmin2025-04-26T08:56:28+00:00LDG1000AAE 07 – WIRING INFORMATION ProductsPositionProductNIMAY 15002079NIMAY 15002533