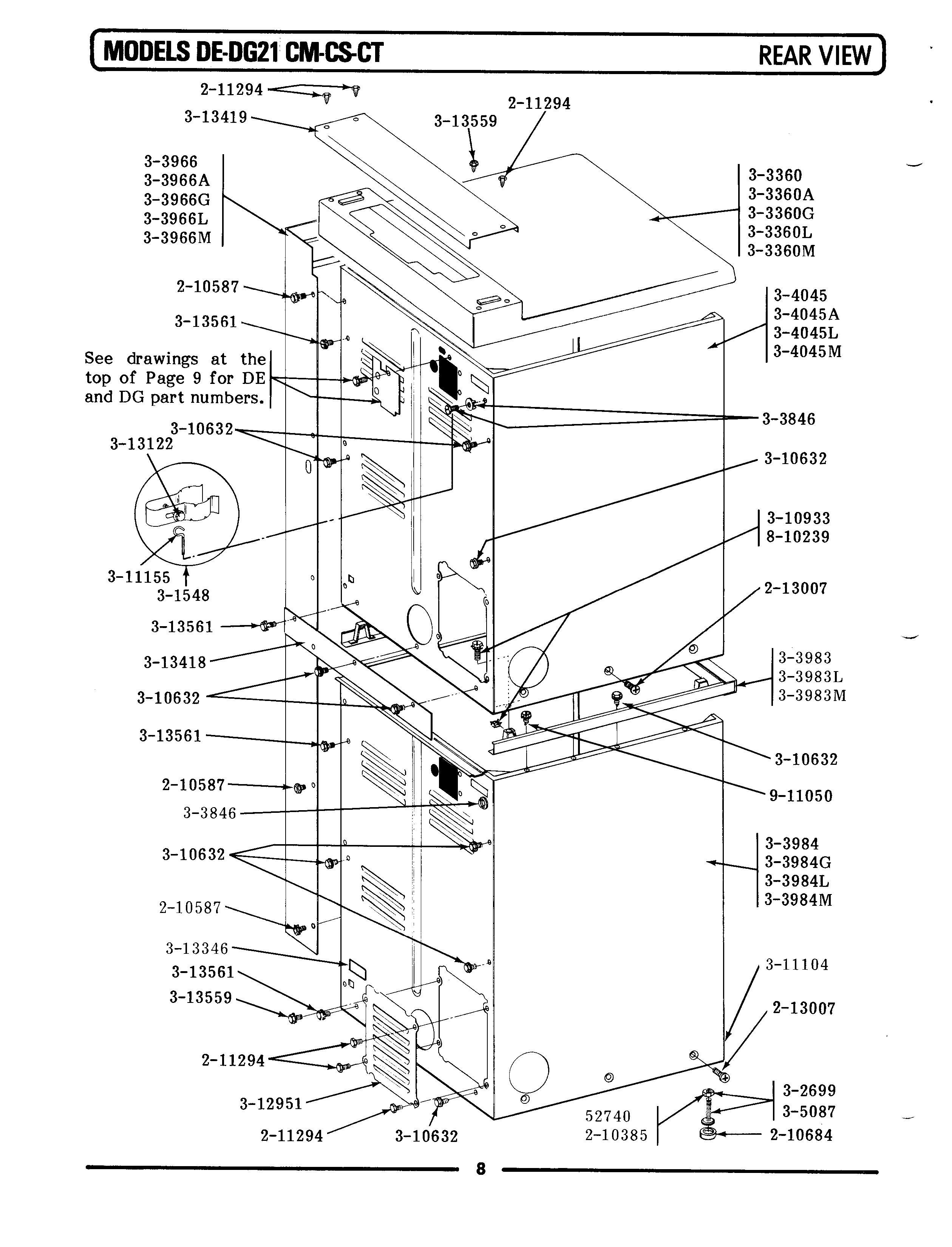
LDG21CS 02 – REAR VIEW