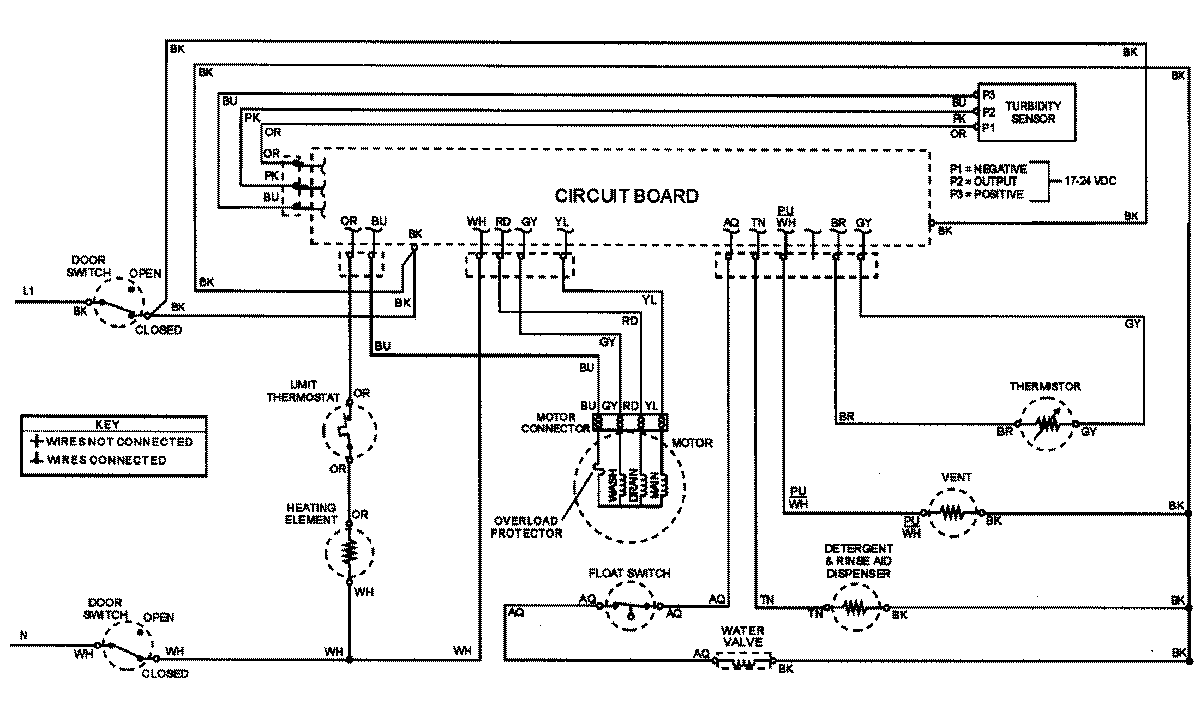
MDBE790AWS 07 – WIRING INFORMATIONadmin2025-04-26T10:09:37+00:00MDBE790AWS 07 – WIRING INFORMATION ProductsPositionProductNIMAY 15002858