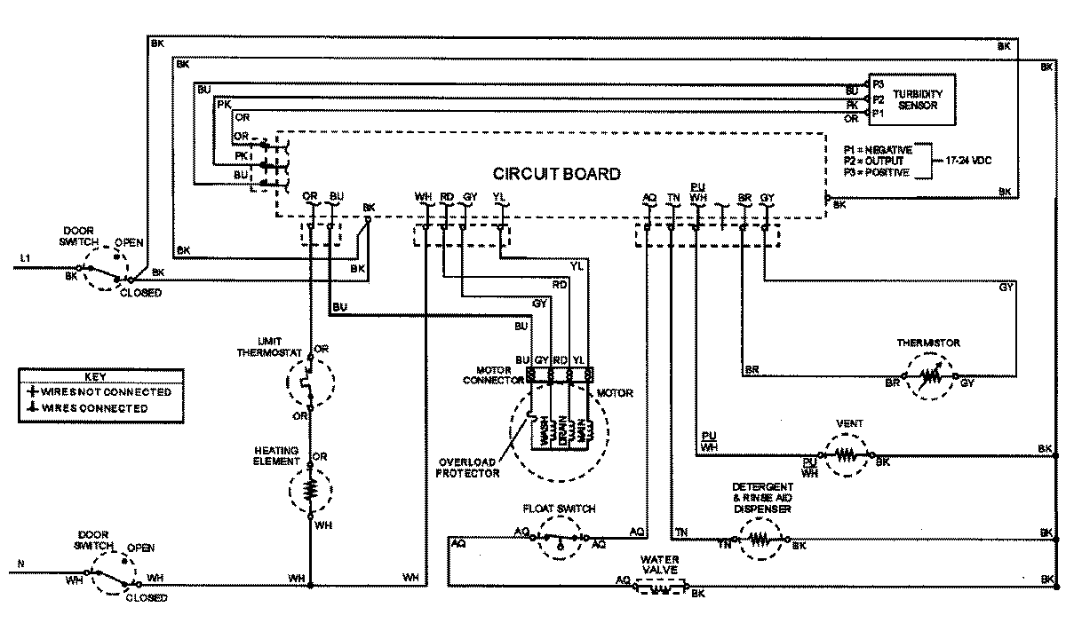
MDBE790AWW 07 – WIRING INFORMATIONadmin2025-04-26T10:07:45+00:00MDBE790AWW 07 – WIRING INFORMATION ProductsPositionProductNIMAY 15002858