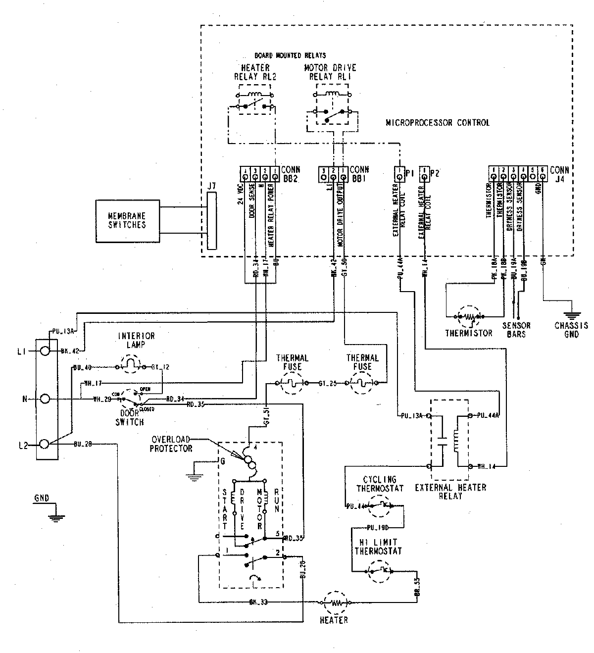
MDE7500AZW 07 – WIRING INFORMATIONadmin2025-04-26T09:58:34+00:00MDE7500AZW 07 – WIRING INFORMATION ProductsPositionProductNIMAY 15003130NIMAY 15002756