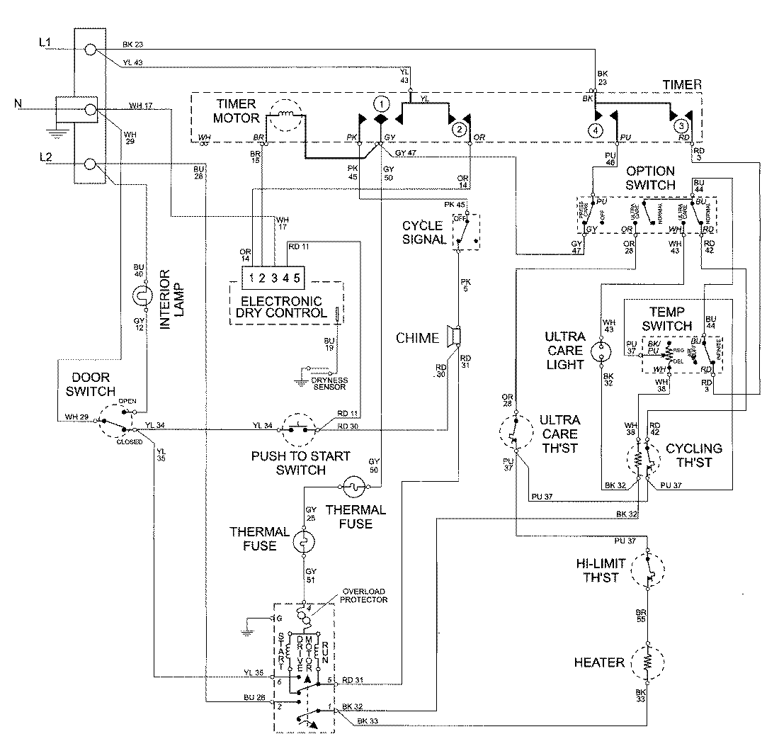
MDE8500AYW 08 – WIRING INFORMATIONadmin2025-04-26T09:58:41+00:00MDE8500AYW 08 – WIRING INFORMATION ProductsPositionProductNIMAY 15002678