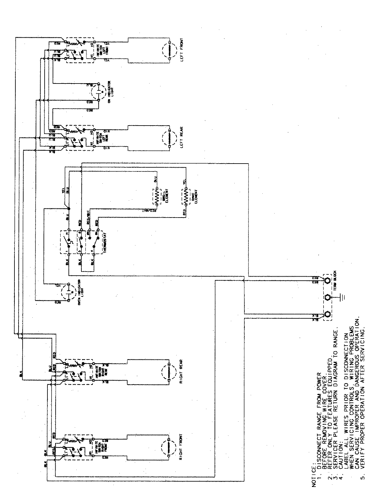
MER4120AAW 07 – WIRING INFORMATIONadmin2025-04-26T09:24:40+00:00MER4120AAW 07 – WIRING INFORMATION ProductsPositionProductNIMAY 15003596