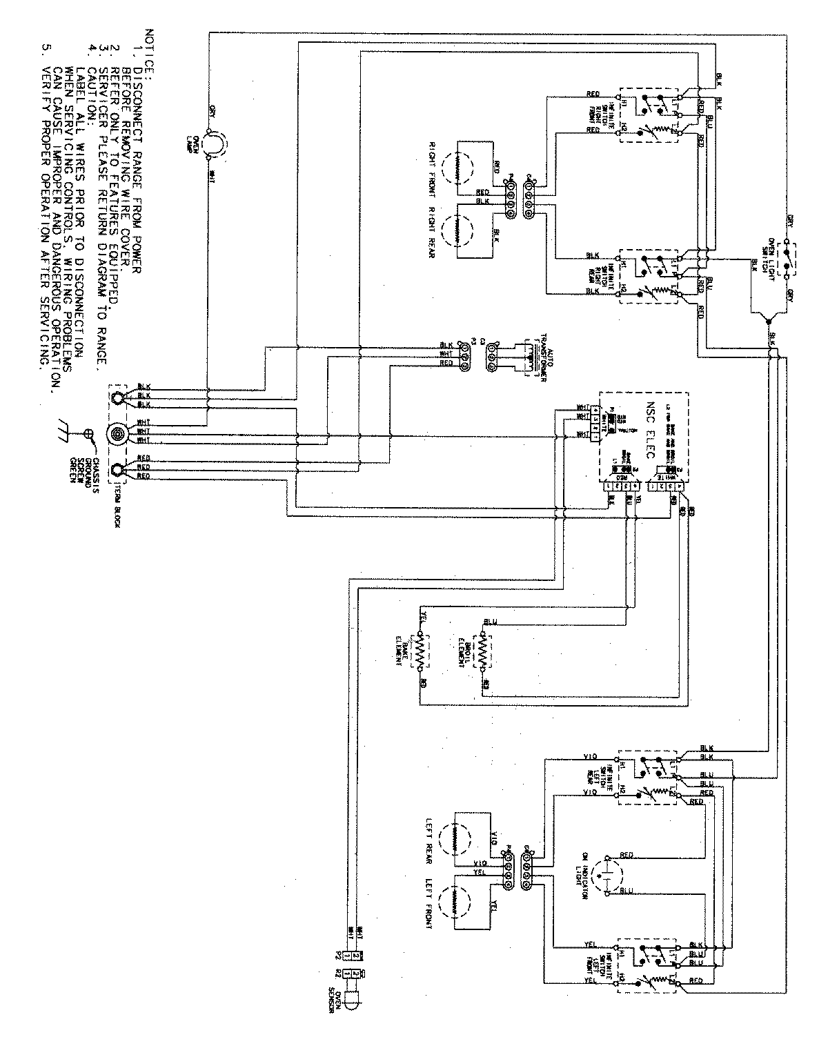
MER4351AGW 06 – WIRING INFORMATIONadmin2025-04-26T09:25:12+00:00MER4351AGW 06 – WIRING INFORMATION ProductsPositionProductNIMAY 15003724