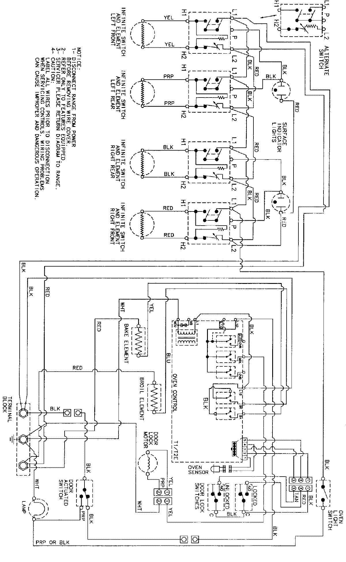
MER5570AAA 06 – WIRING INFORMATIONadmin2025-04-26T09:11:21+00:00MER5570AAA 06 – WIRING INFORMATION ProductsPositionProductNIMAY 15002325