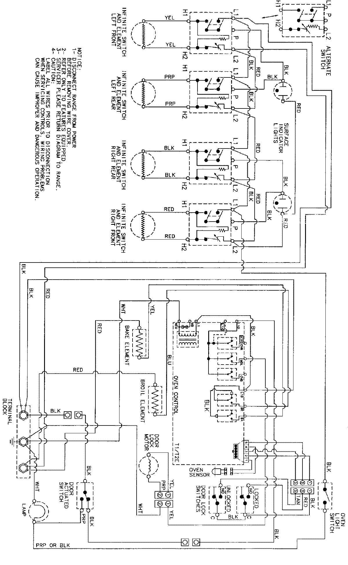
MER5570AAQ 06 – WIRING INFORMATIONadmin2025-04-26T09:10:48+00:00MER5570AAQ 06 – WIRING INFORMATION ProductsPositionProductNIMAY 15002325