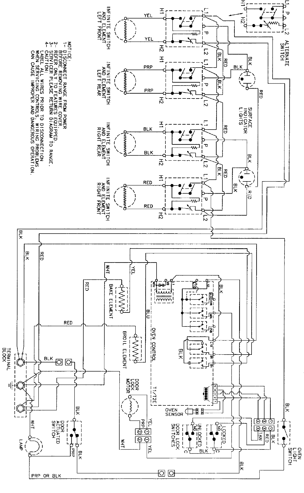
MER5570AAW 06 – WIRING INFORMATIONadmin2025-04-26T09:10:02+00:00MER5570AAW 06 – WIRING INFORMATION ProductsPositionProductNIMAY 15002325