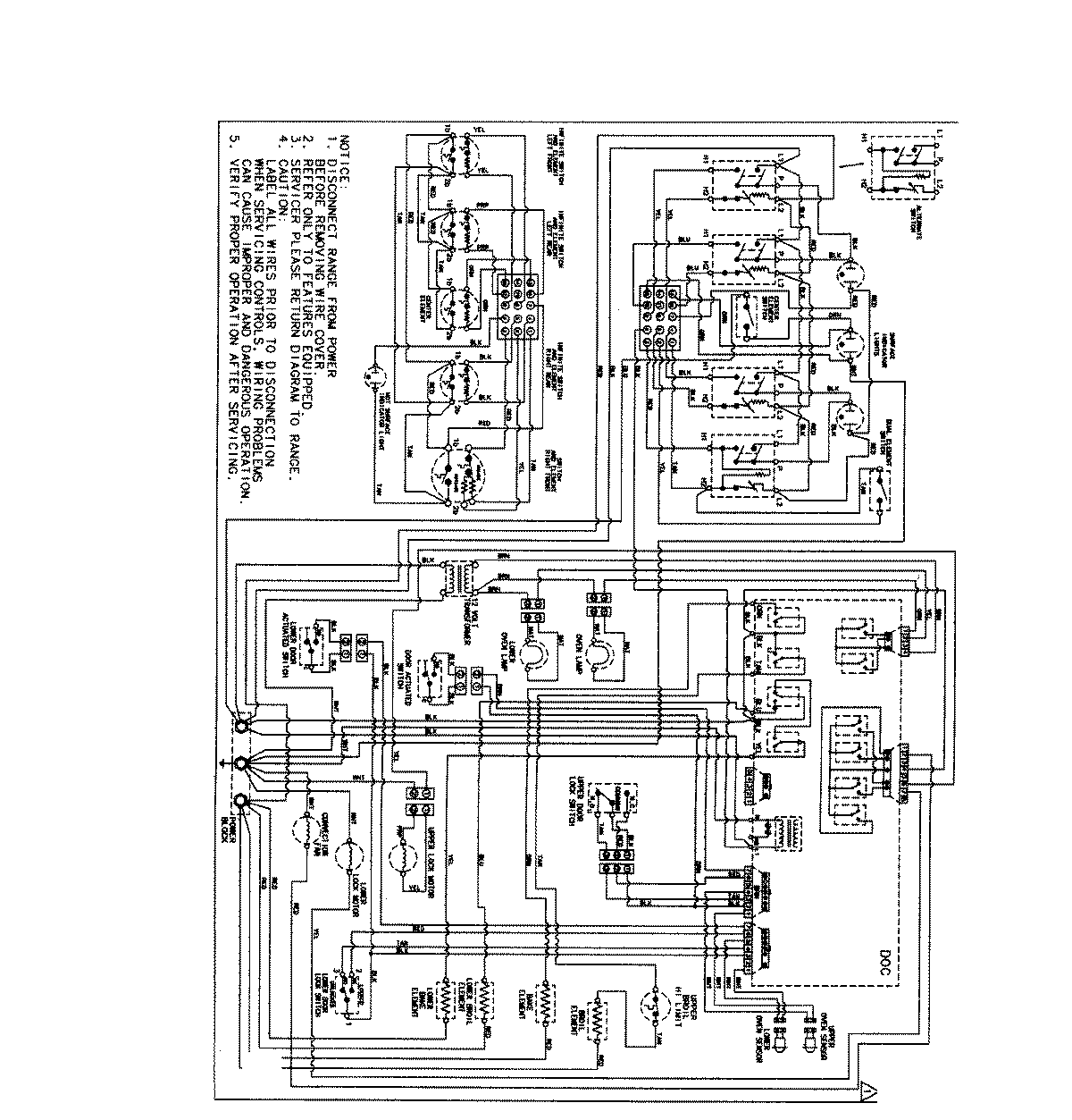
MER6772BAQ 07 – WIRING INFORMATIONadmin2025-04-26T09:14:21+00:00MER6772BAQ 07 – WIRING INFORMATION ProductsPositionProductNIMAY 15002895NIMAY 15003119NIMAY 15003144