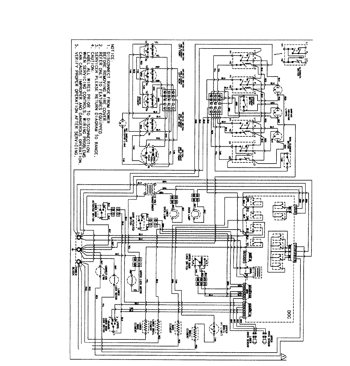
MER6772BAS 07 – WIRING INFORMATION