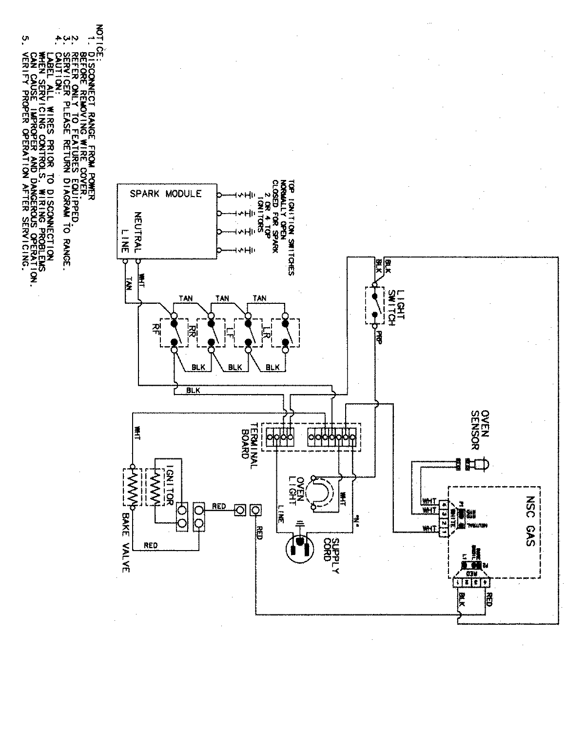
MGR4451ADB 07 – WIRING INFORMATIONadmin2025-04-26T11:34:51+00:00MGR4451ADB 07 – WIRING INFORMATION ProductsPositionProductNIMAY 15003530