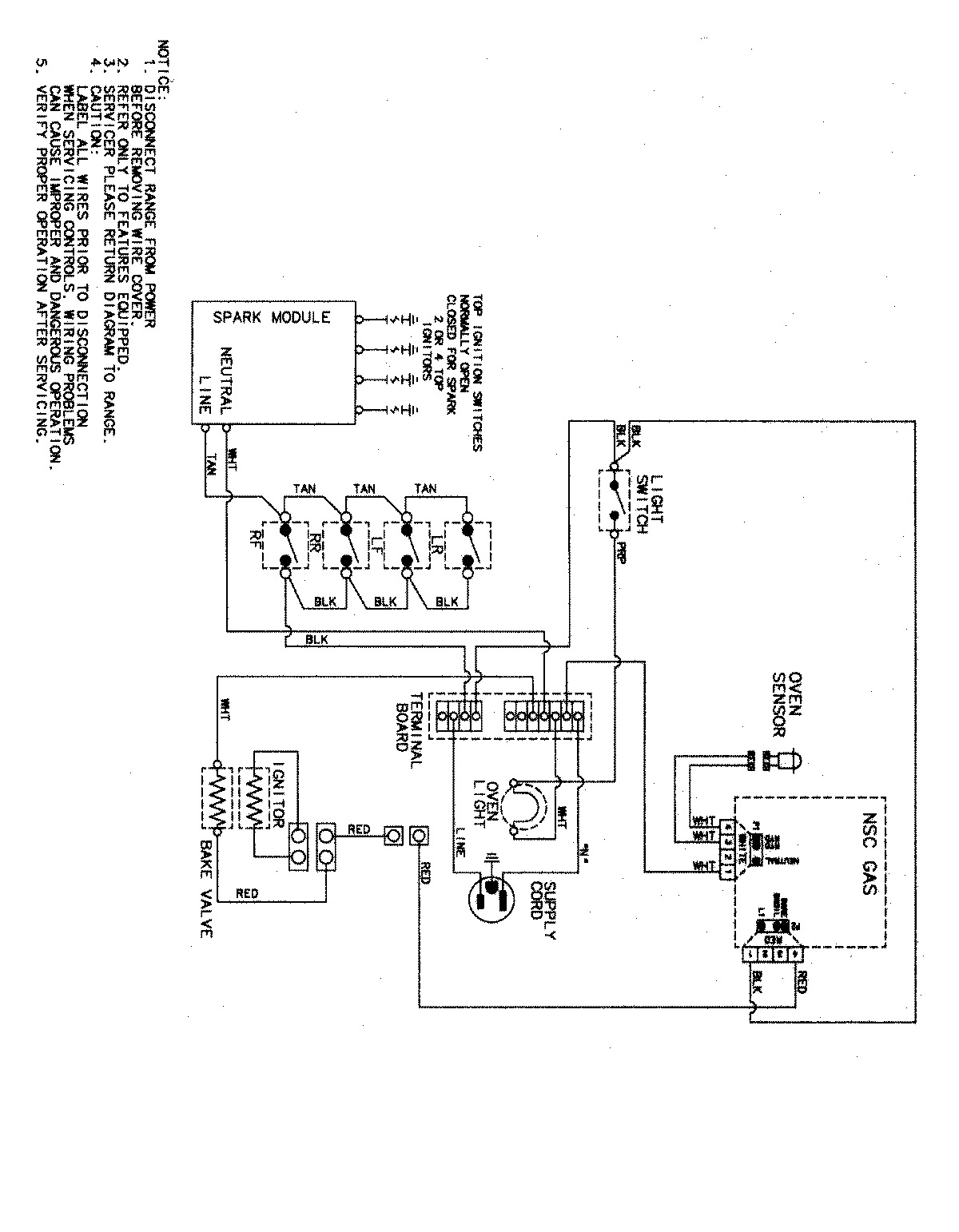
MGR4451BDQ 07 – WIRING INFORMATIONadmin2025-04-26T09:12:30+00:00MGR4451BDQ 07 – WIRING INFORMATION ProductsPositionProductNIMAY 15003530