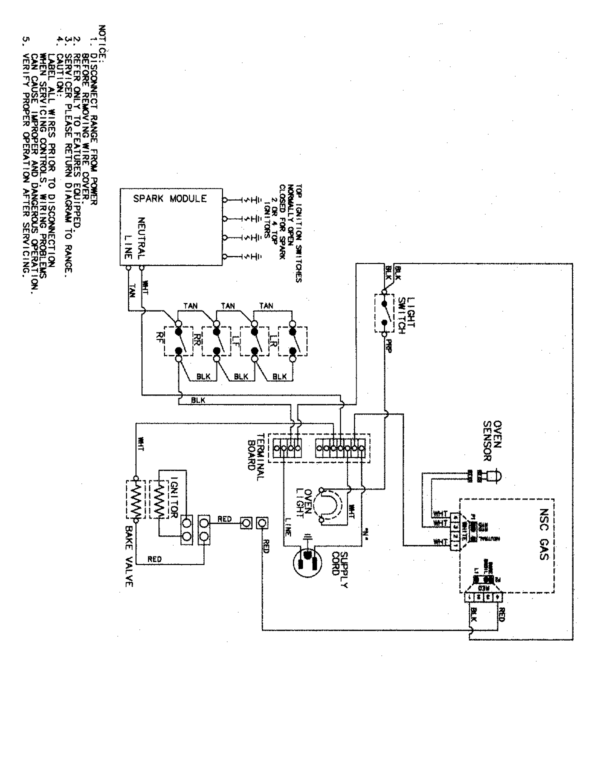
MGR4451BDS 07 – WIRING INFORMATIONadmin2025-04-26T09:12:31+00:00MGR4451BDS 07 – WIRING INFORMATION ProductsPositionProductNIMAY 15003530