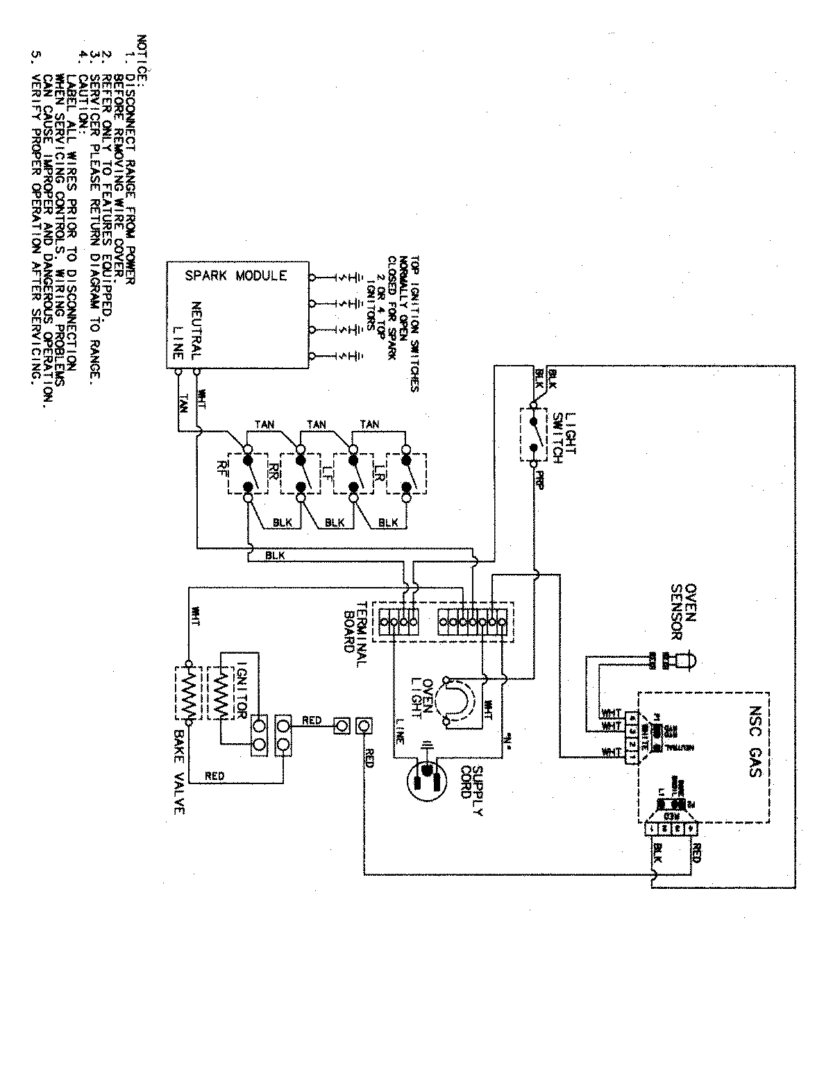
MGR4451BDW 07 – WIRING INFORMATIONadmin2025-04-26T09:12:16+00:00MGR4451BDW 07 – WIRING INFORMATION ProductsPositionProductNIMAY 15003530