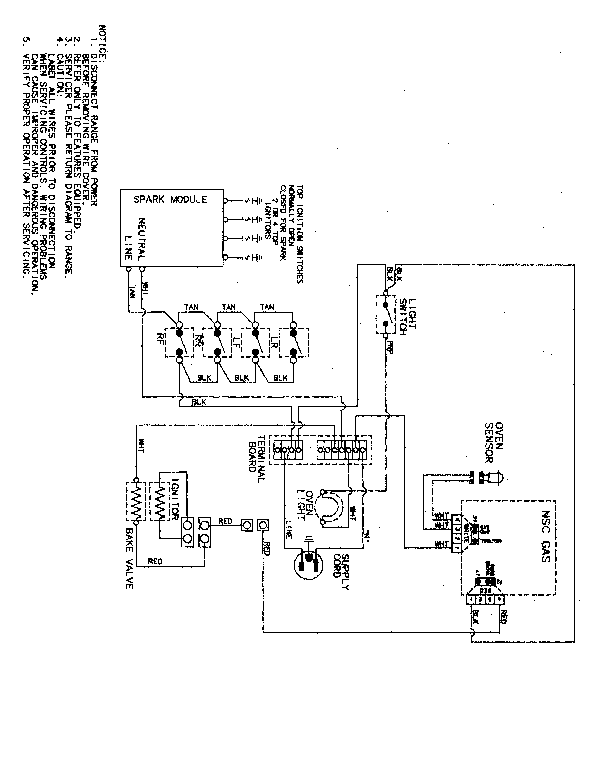
MGR4452ADB 07 – WIRING INFORMATIONadmin2025-04-26T09:13:28+00:00MGR4452ADB 07 – WIRING INFORMATION ProductsPositionProductNIMAY 15003530