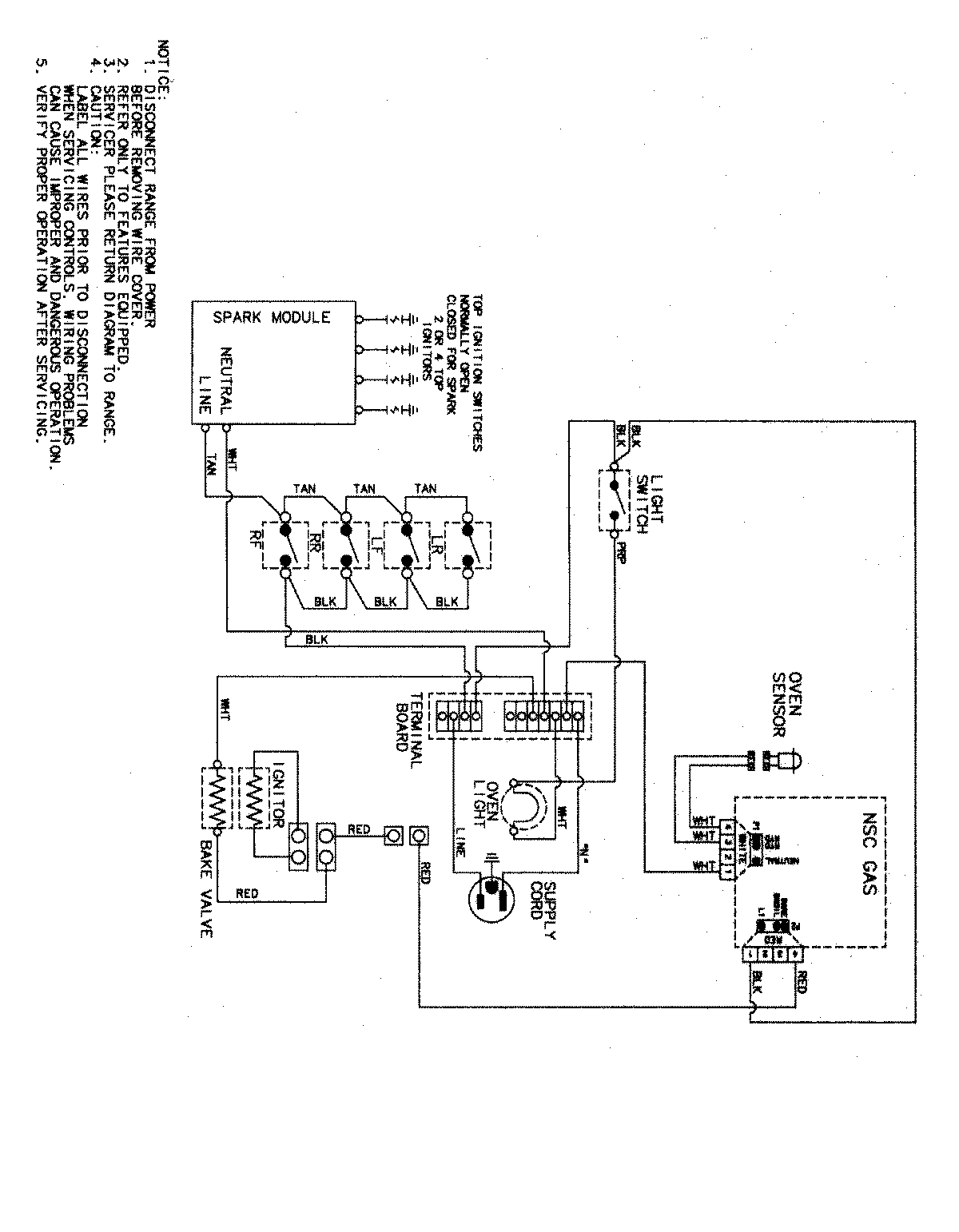
MGR4452ADQ 07 – WIRING INFORMATIONadmin2025-04-26T09:13:26+00:00MGR4452ADQ 07 – WIRING INFORMATION ProductsPositionProductNIMAY 15003530