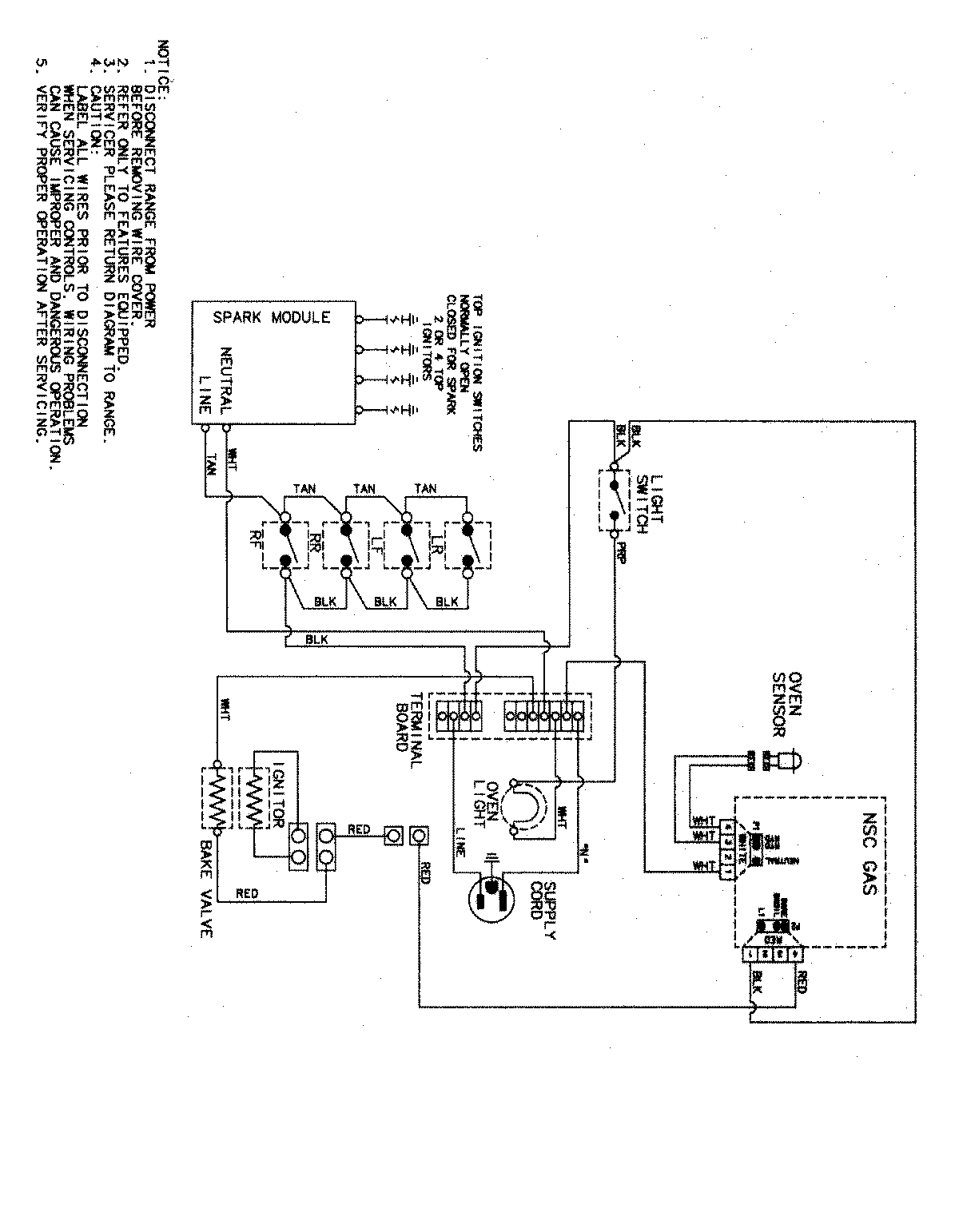
MGR4452ADS 07 – WIRING INFORMATIONadmin2025-04-26T09:12:34+00:00MGR4452ADS 07 – WIRING INFORMATION ProductsPositionProductNIMAY 15003530