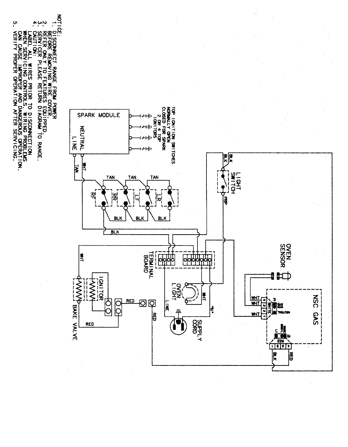
MGR4452BDS 08 – WIRING INFORMATIONadmin2025-04-26T09:13:53+00:00MGR4452BDS 08 – WIRING INFORMATION ProductsPositionProductNIMAY 15003530