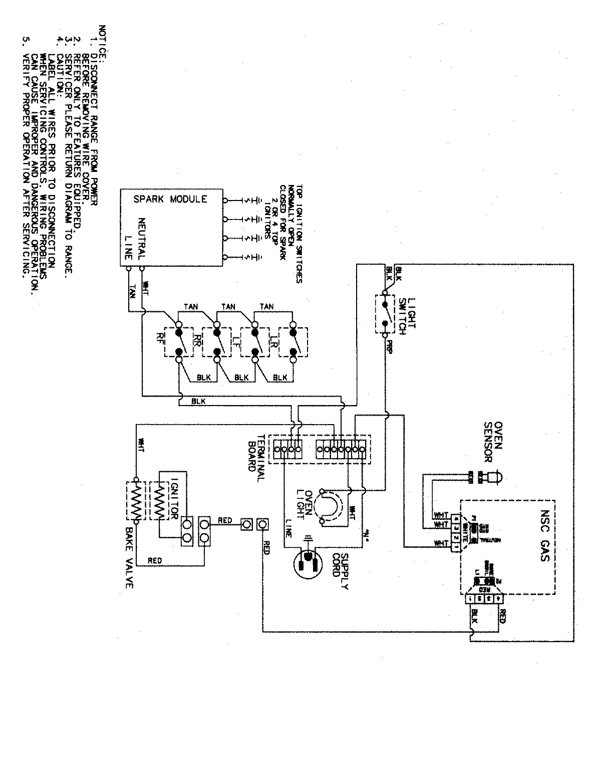
MGR4452BDW 08 – WIRING INFORMATION

MGR4452BDW 08 – WIRING INFORMATION

Products

PositionProduct
NIMAY 15003530