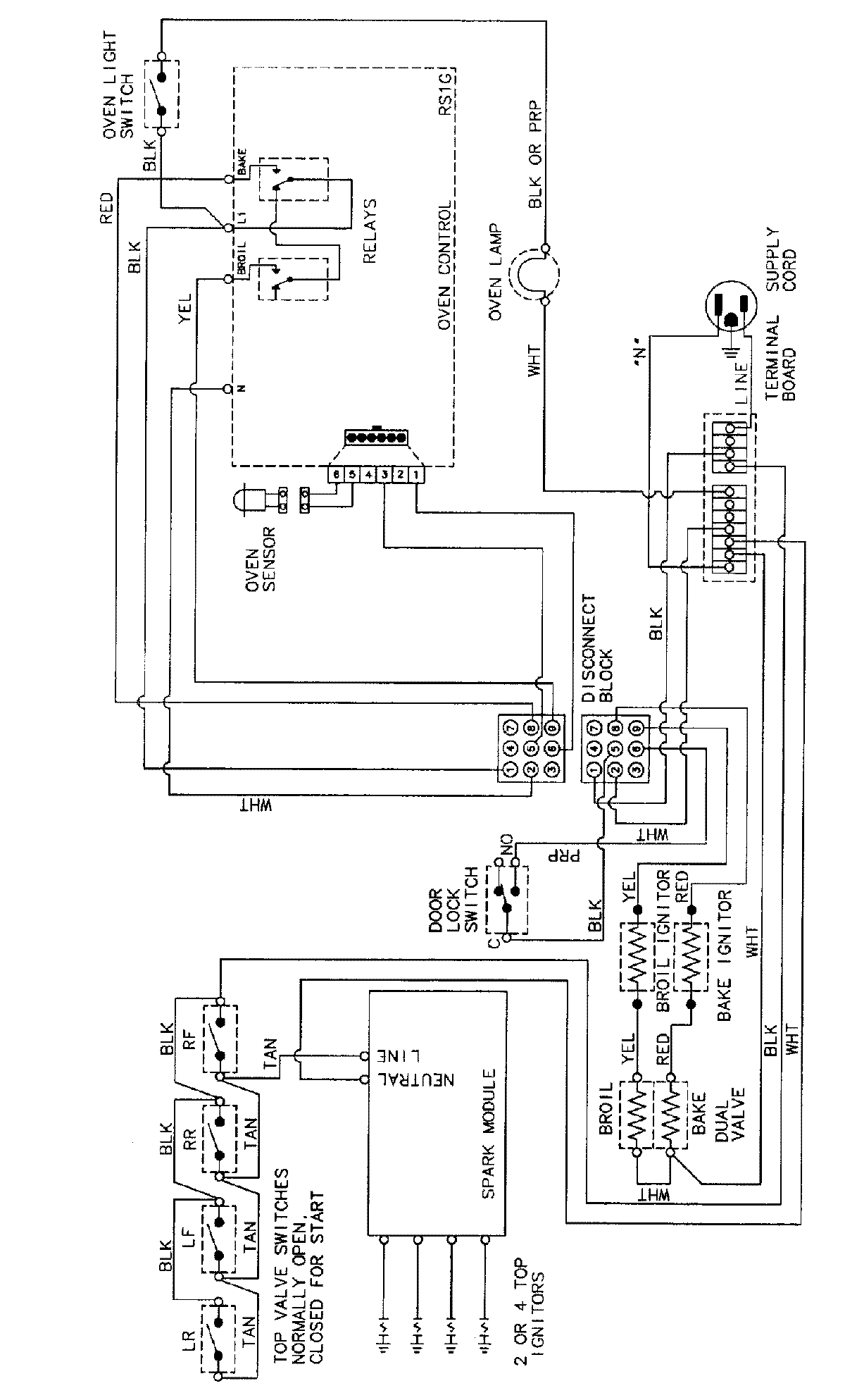
MGR5721BDQ 07 – WIRING INFORMATIONadmin2025-04-26T09:14:05+00:00MGR5721BDQ 07 – WIRING INFORMATION ProductsPositionProductNIMAY 15002242