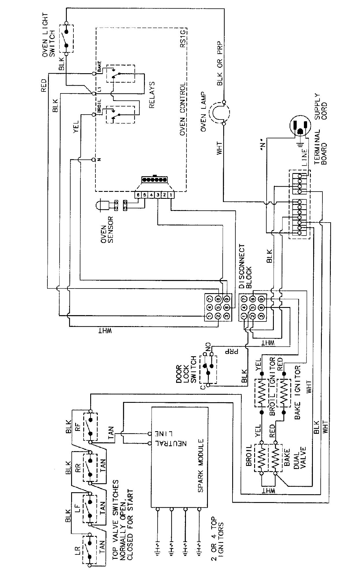
MGR5729ADA 07 – WIRING INFORMATIONadmin2025-04-26T09:14:10+00:00MGR5729ADA 07 – WIRING INFORMATION ProductsPositionProductNIMAY 15002242