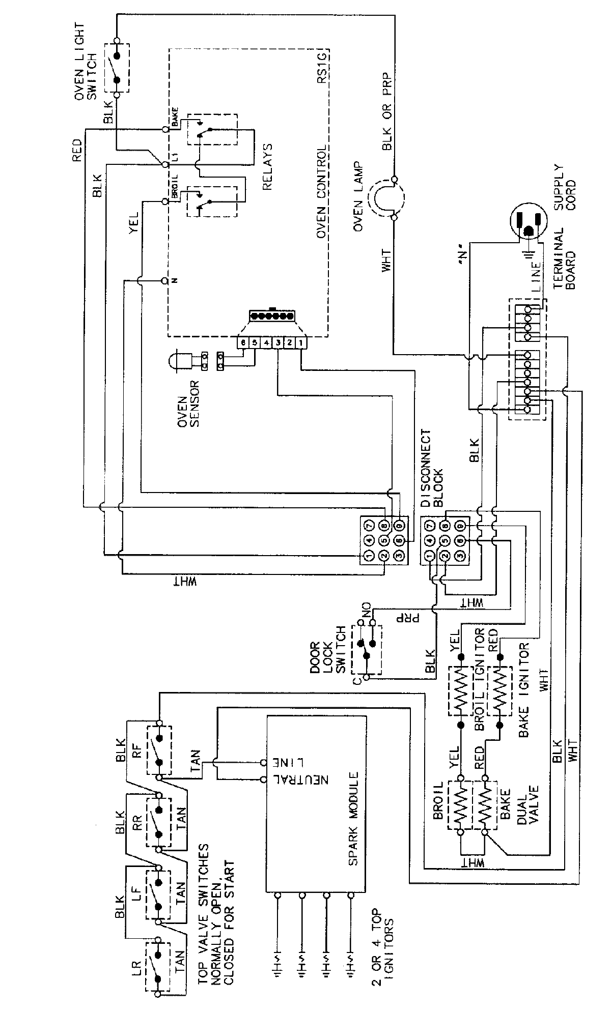
MGR5729ADH 07 – WIRING INFORMATIONadmin2025-04-26T09:12:44+00:00MGR5729ADH 07 – WIRING INFORMATION ProductsPositionProductNIMAY 15002242