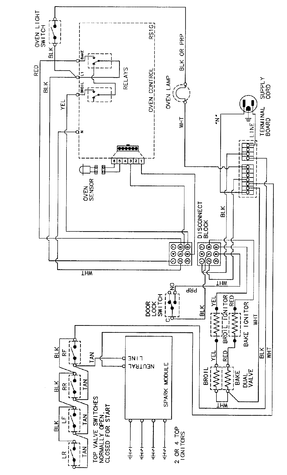
MGR5729ADL 07 – WIRING INFORMATIONadmin2025-04-26T09:13:49+00:00MGR5729ADL 07 – WIRING INFORMATION ProductsPositionProductNIMAY 15002242