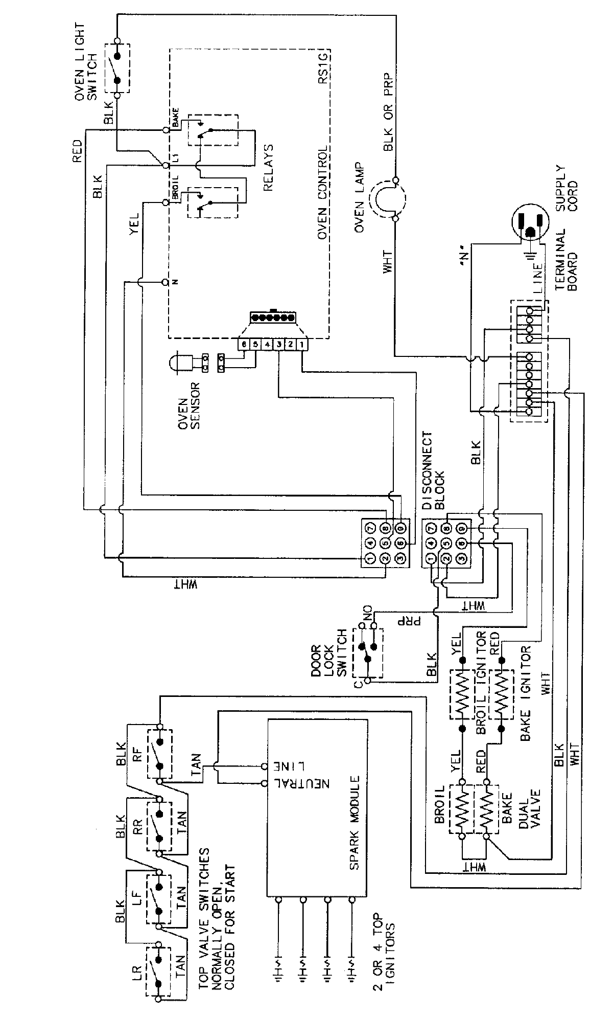
MGR5729ADT 07 – WIRING INFORMATION (ADT)admin2025-04-26T09:13:46+00:00MGR5729ADT 07 – WIRING INFORMATION (ADT) ProductsPositionProductNIMAY 15002242