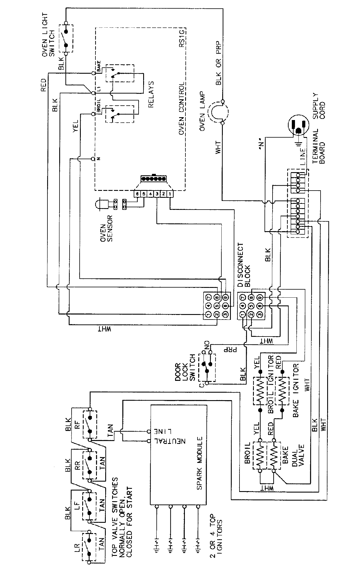
MGR5730ADW 07 – WIRING INFORMATIONadmin2025-04-26T09:13:44+00:00MGR5730ADW 07 – WIRING INFORMATION ProductsPositionProductNIMAY 15002242