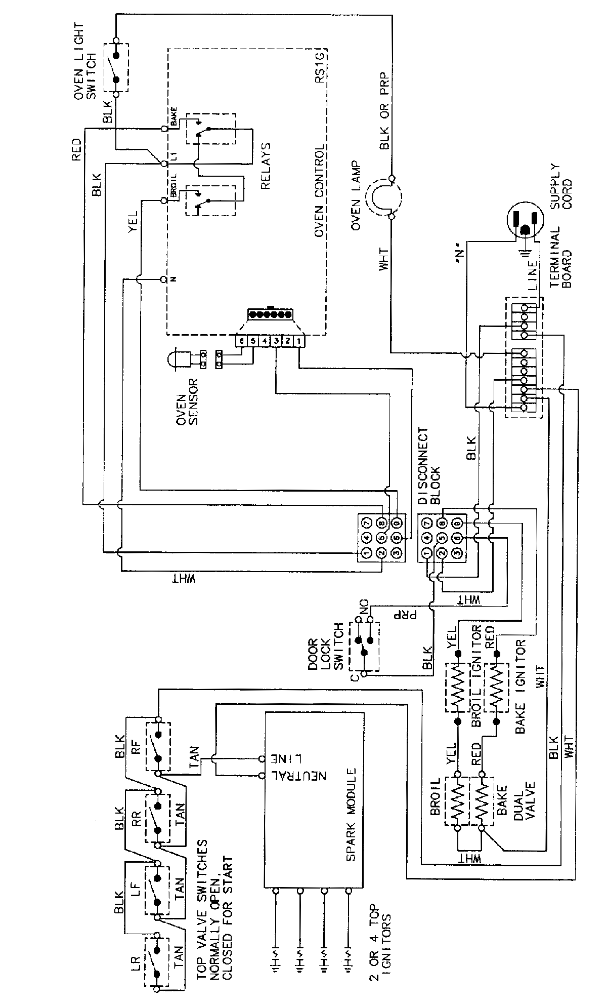
MGR5745ADA 07 – WIRING INFORMATIONadmin2025-04-26T09:12:41+00:00MGR5745ADA 07 – WIRING INFORMATION ProductsPositionProductNIMAY 15002242