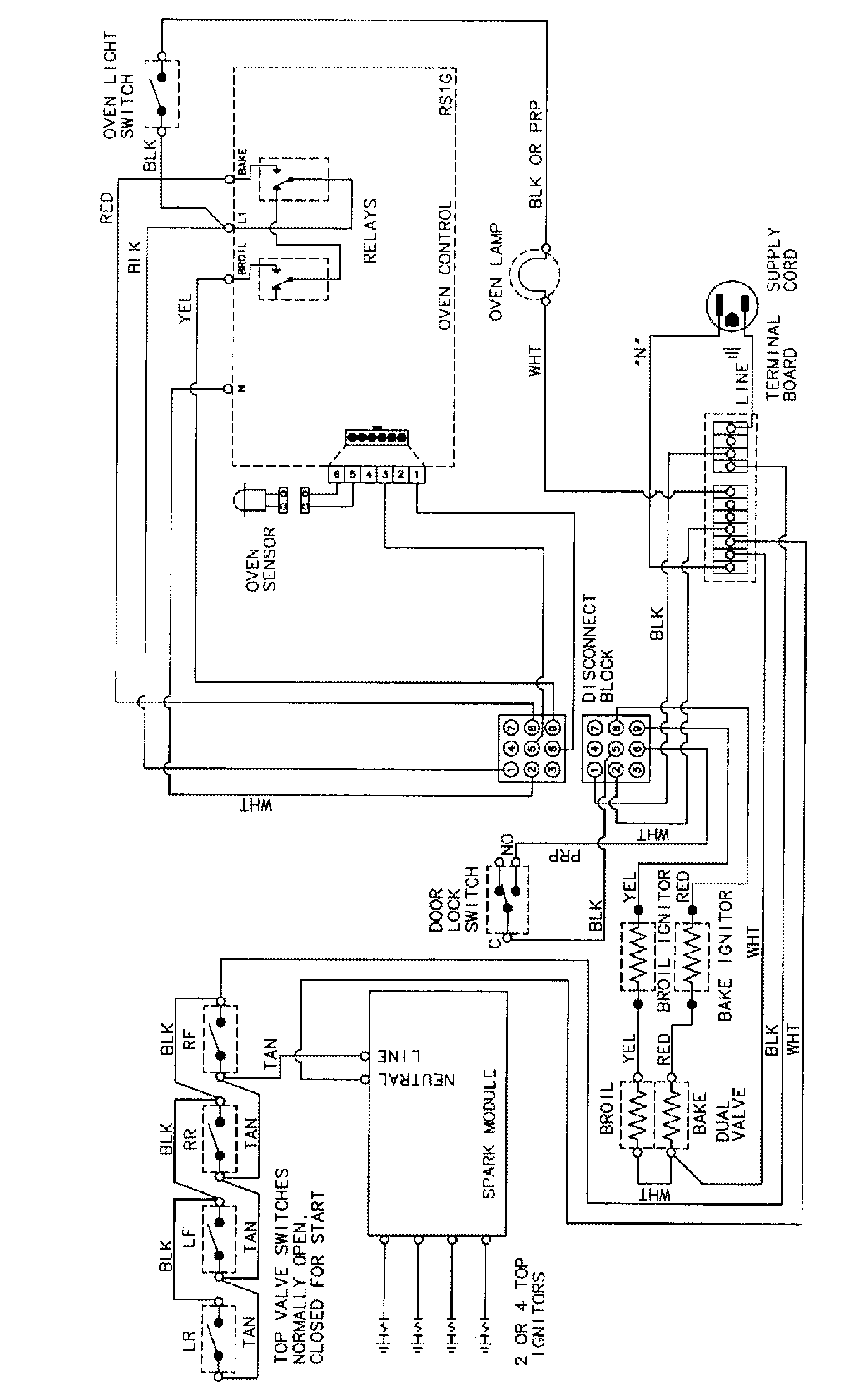
MGR5745ADB 07 – WIRING INFORMATIONadmin2025-04-26T09:12:02+00:00MGR5745ADB 07 – WIRING INFORMATION ProductsPositionProductNIMAY 15002242