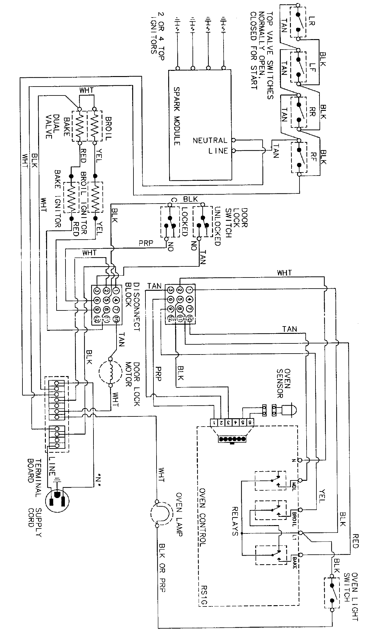
MGR5750ADA 07 – WIRING INFORMATIONadmin2025-04-26T09:13:49+00:00MGR5750ADA 07 – WIRING INFORMATION ProductsPositionProductNIMAY 15002335