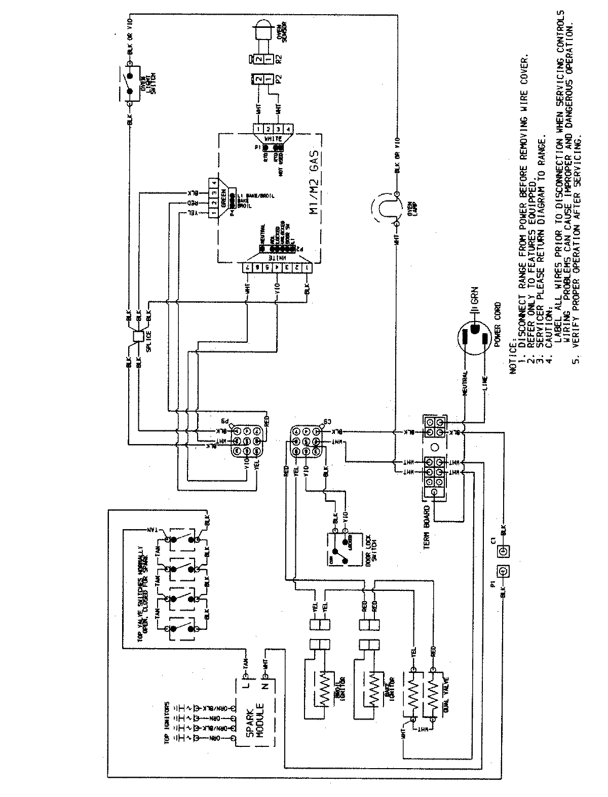
MGR5751ADB 07 – WIRING INFORMATIONadmin2025-04-26T09:13:33+00:00MGR5751ADB 07 – WIRING INFORMATION ProductsPositionProductNIMAY 15003515