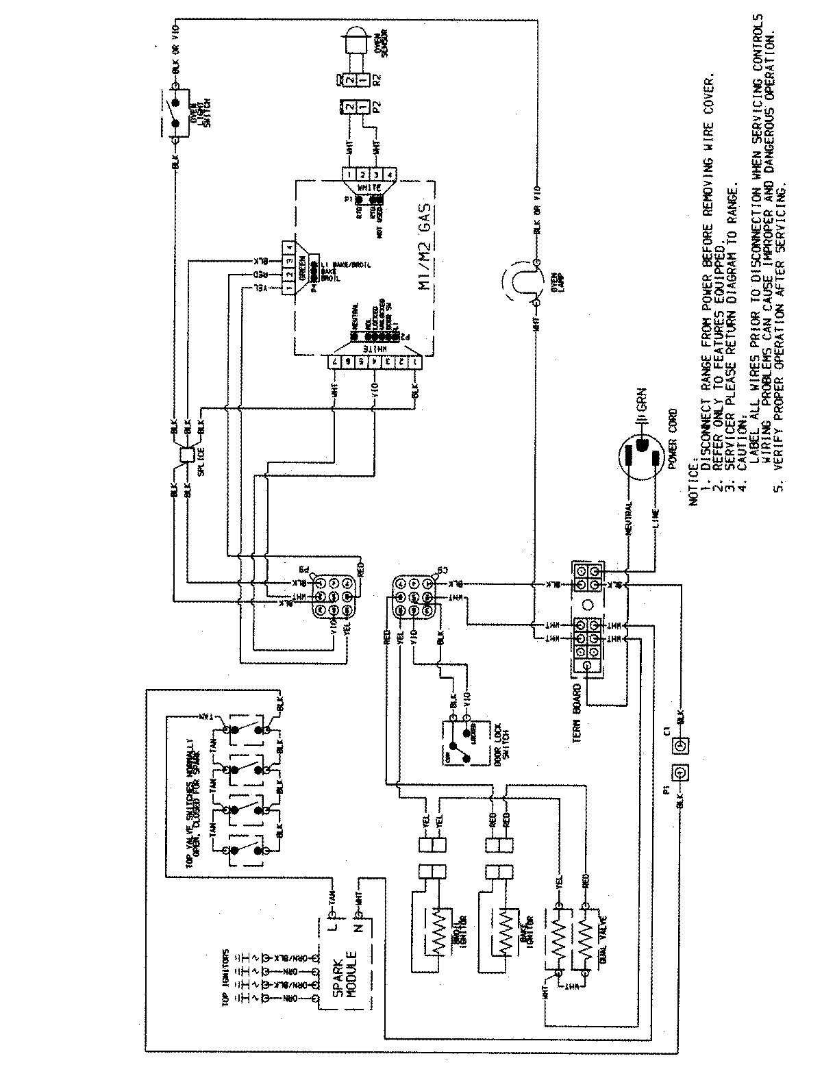
MGR5752BDQ 07 – WIRING INFORMATIONadmin2025-04-26T09:12:29+00:00MGR5752BDQ 07 – WIRING INFORMATION ProductsPositionProductNIMAY 15003515