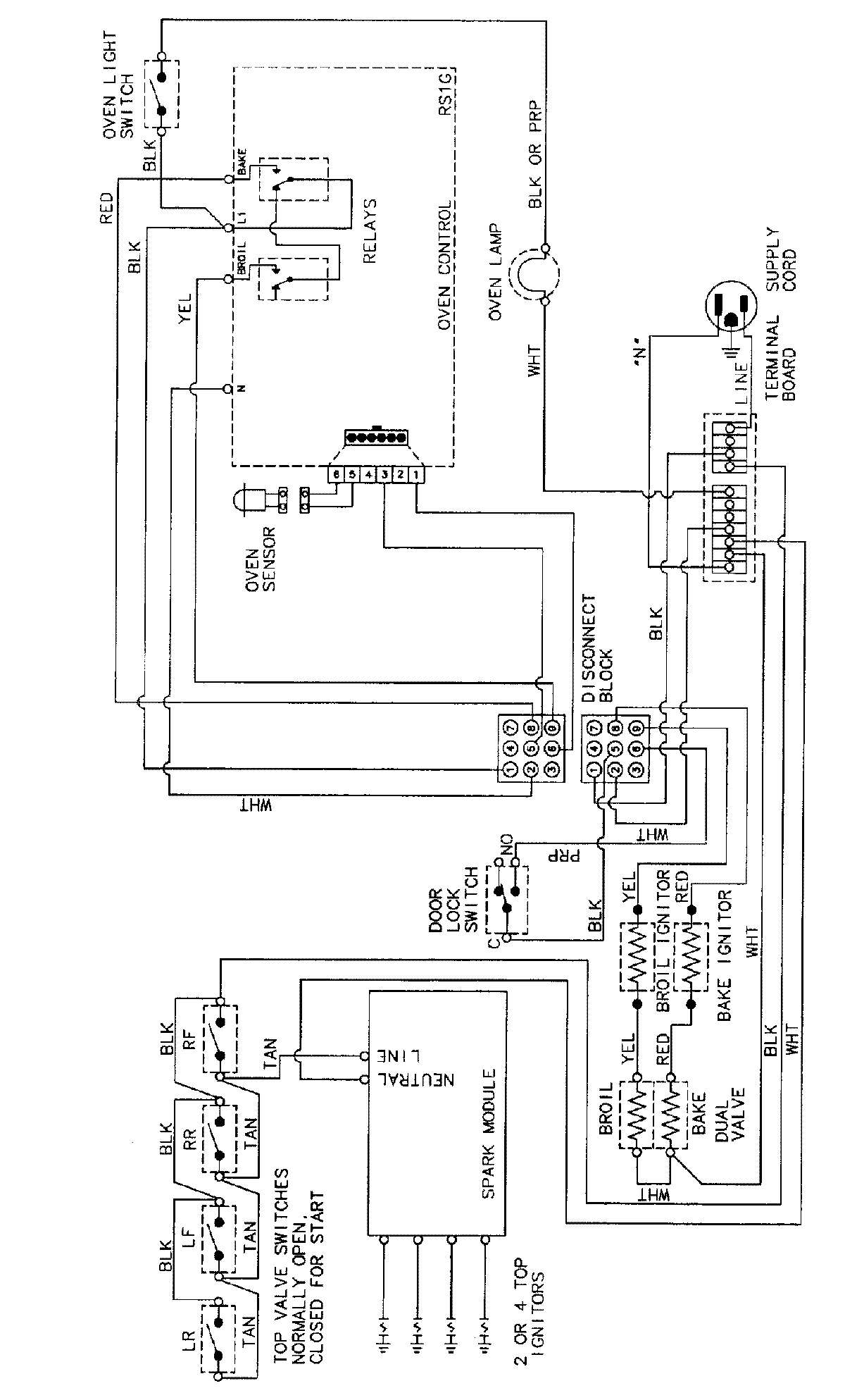
MGR5755ADQ 07 – WIRING INFORMATIONadmin2025-04-26T09:13:26+00:00MGR5755ADQ 07 – WIRING INFORMATION ProductsPositionProductNIMAY 15002242