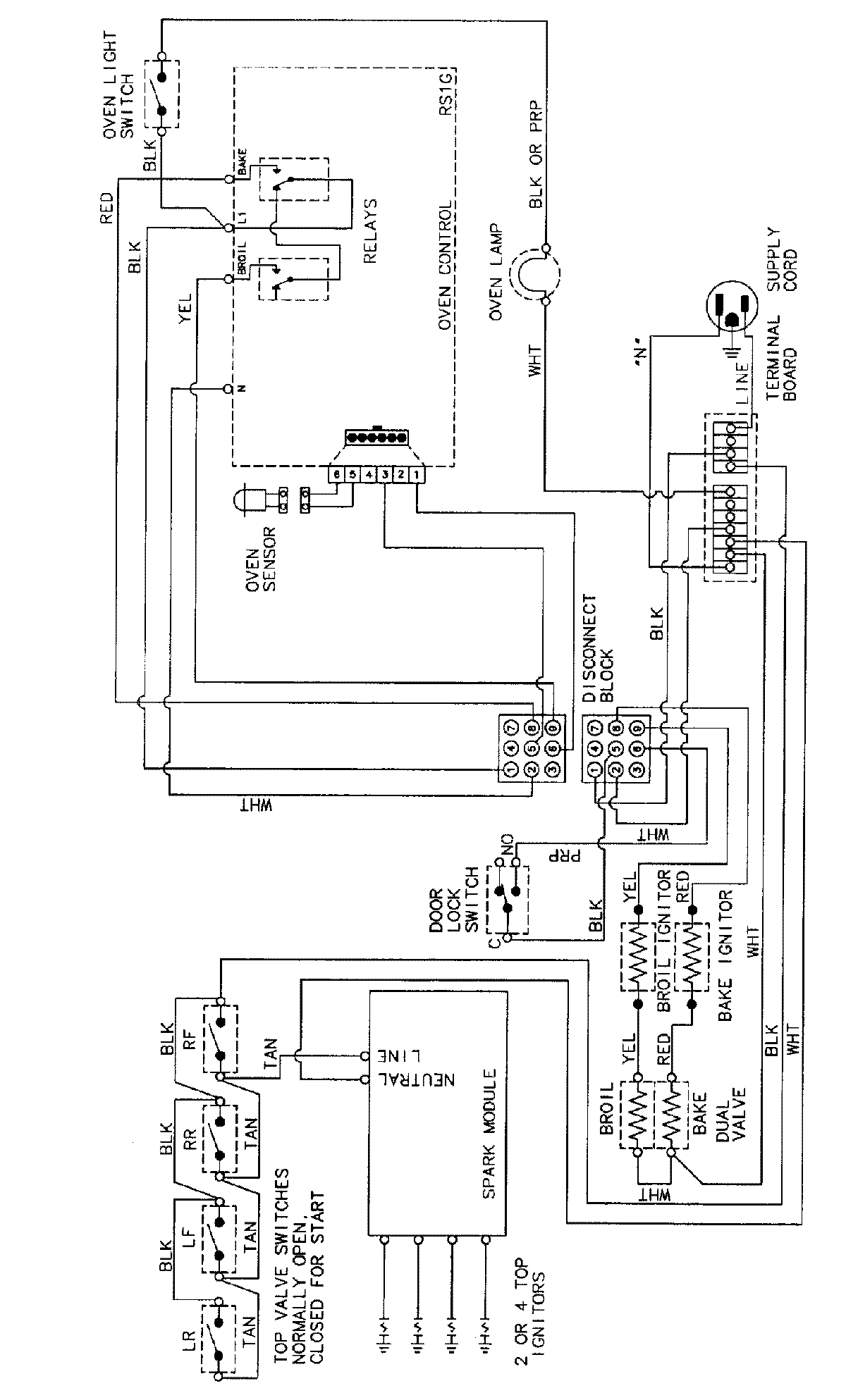
MGR5755BDB 07 – WIRING INFORMATIONadmin2025-04-26T09:14:32+00:00MGR5755BDB 07 – WIRING INFORMATION ProductsPositionProductNIMAY 15002242